Tilpasses etter dine ønsker og behov.
Romslig familiehytte med hems, luftige oppholdsrom og stor terrasse med overbygget del eller panorama vinduer
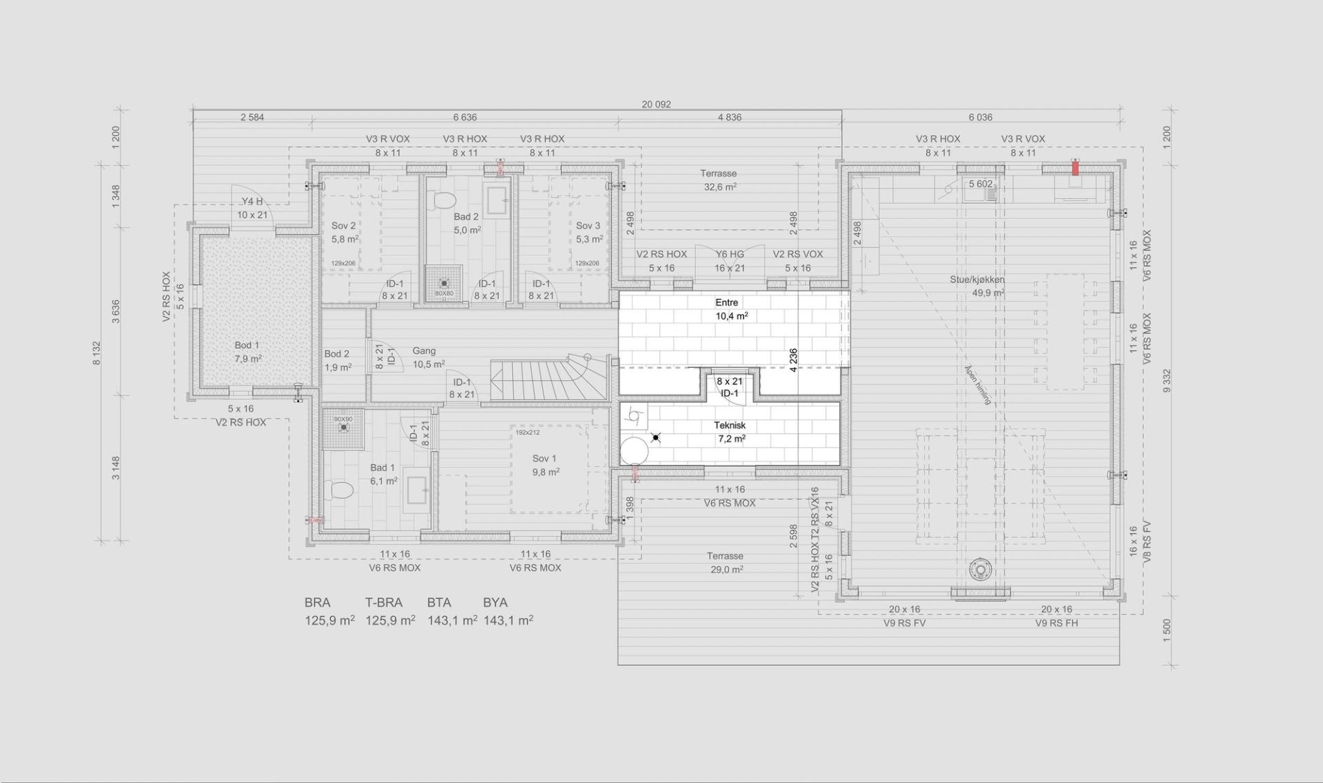
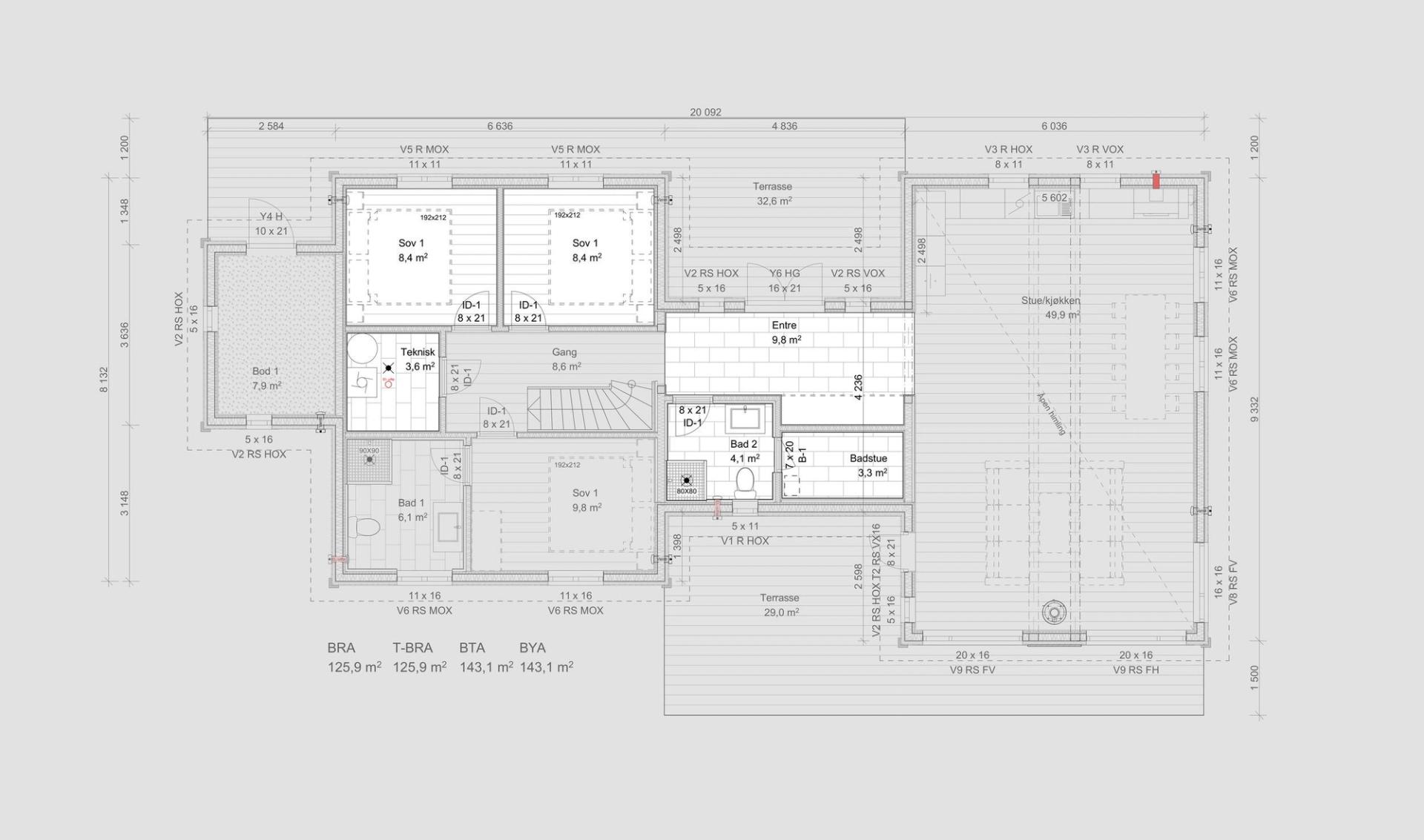
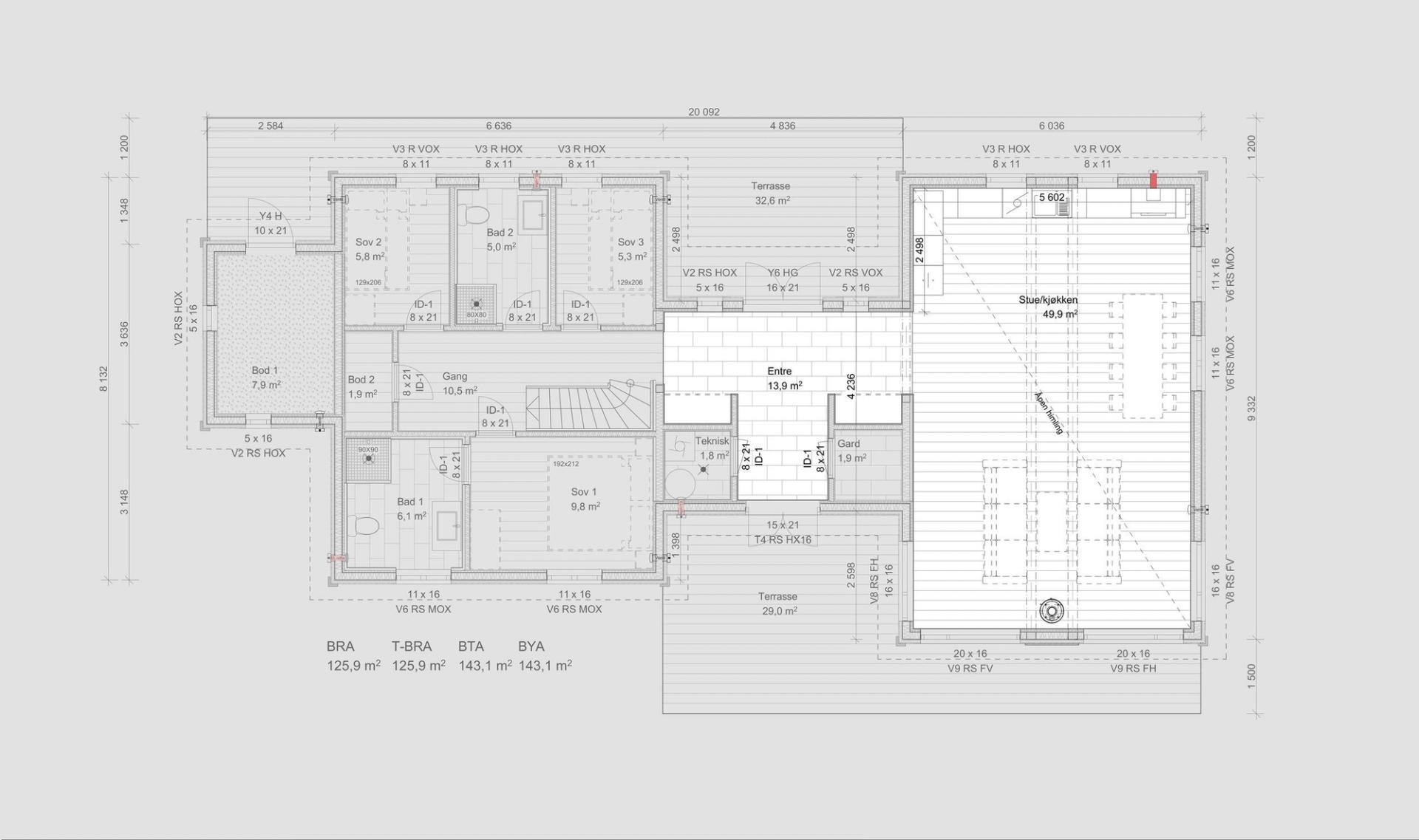
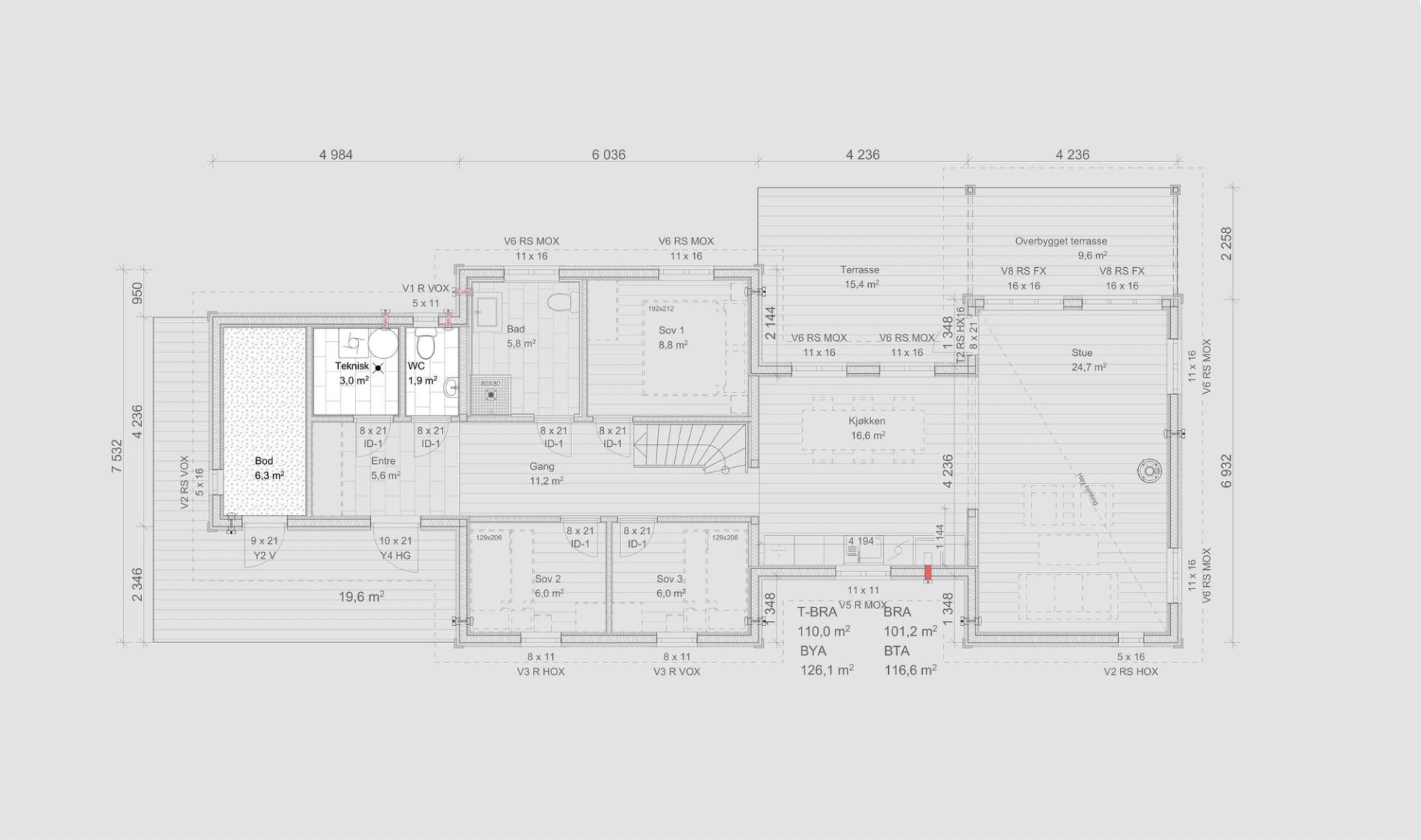
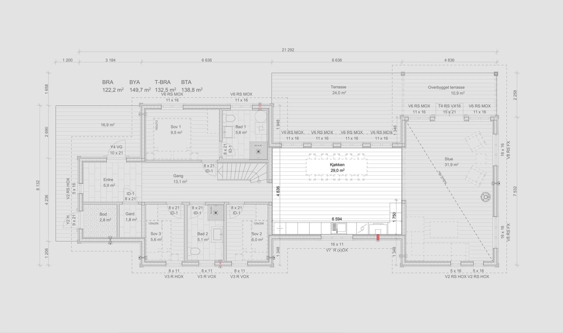
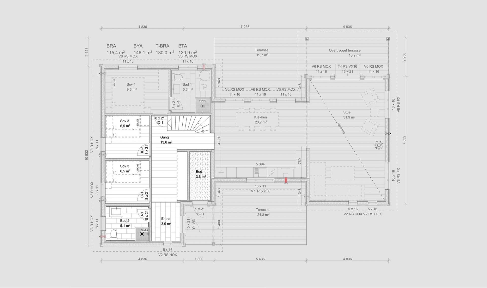
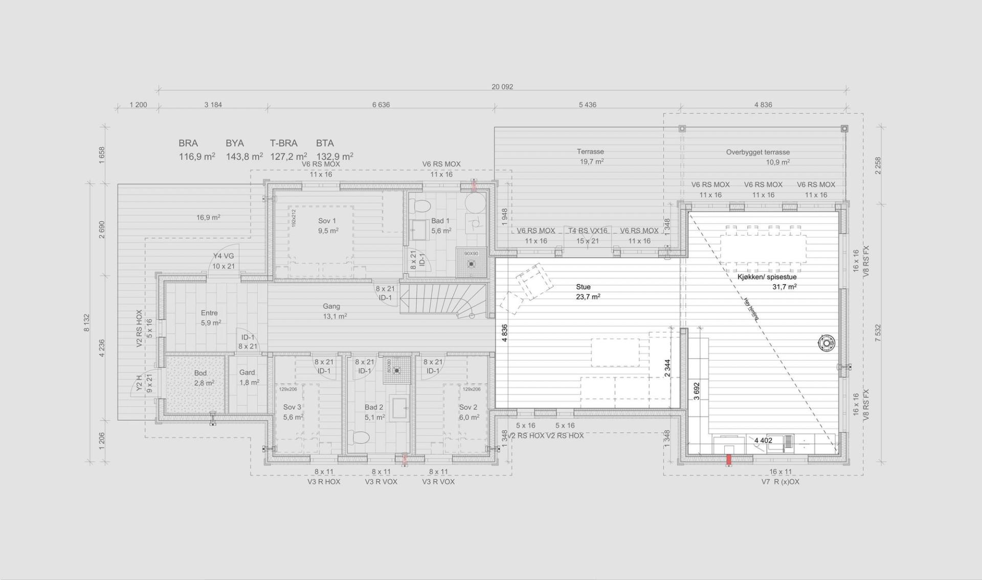
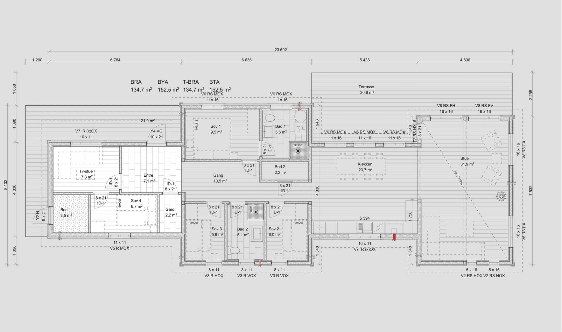
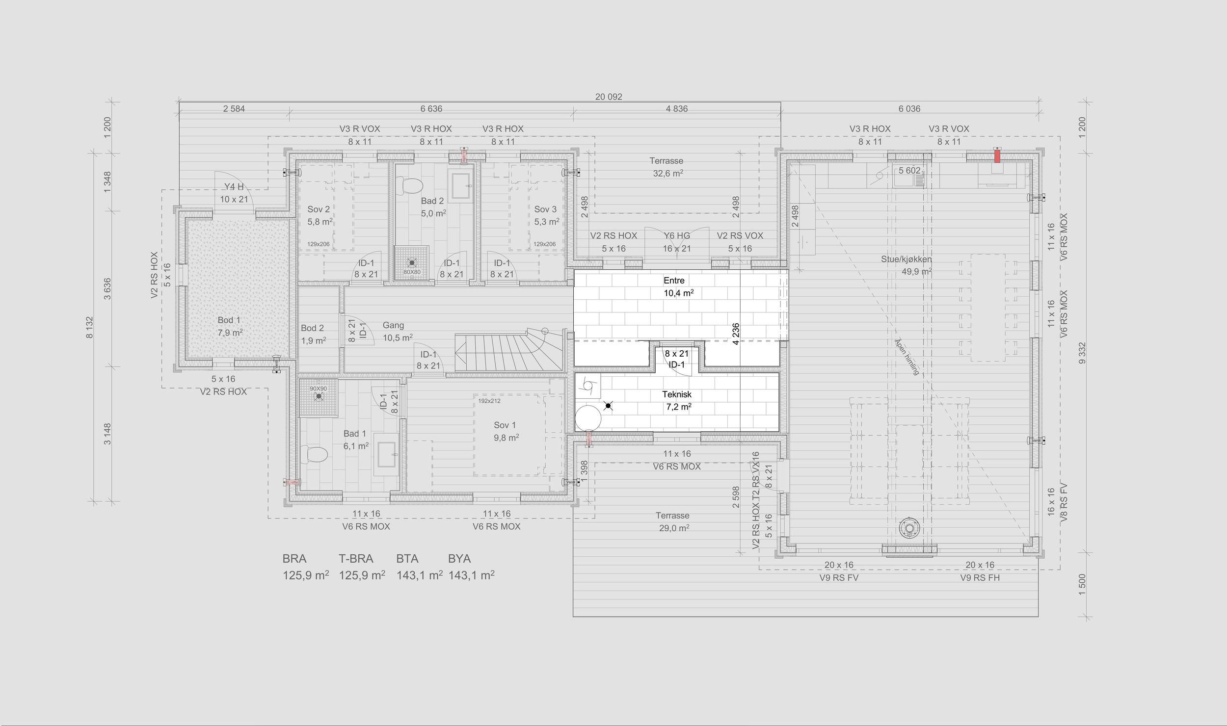
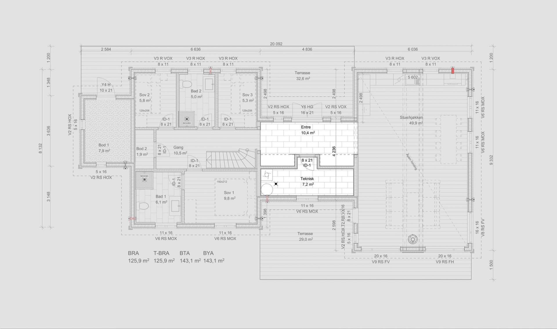
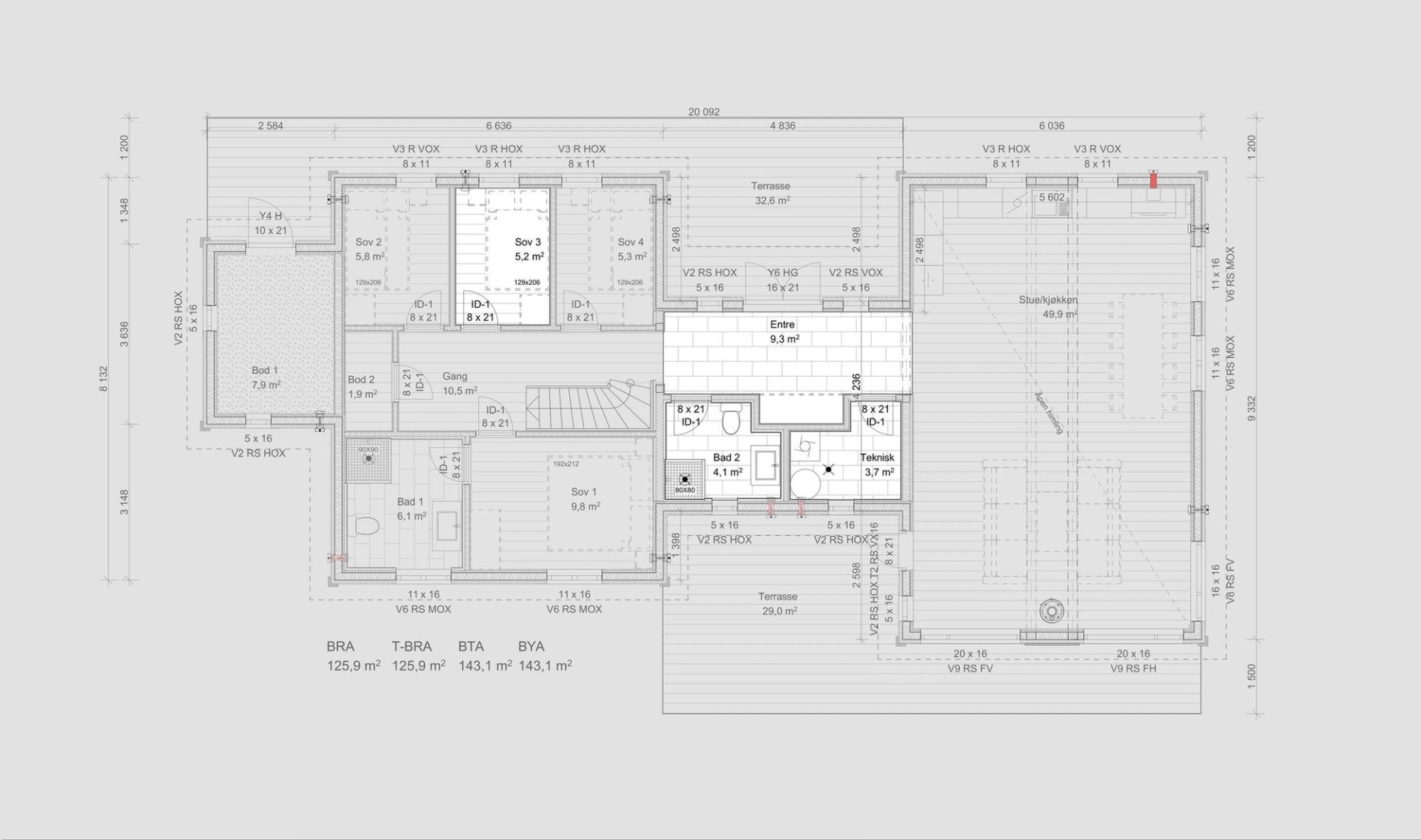
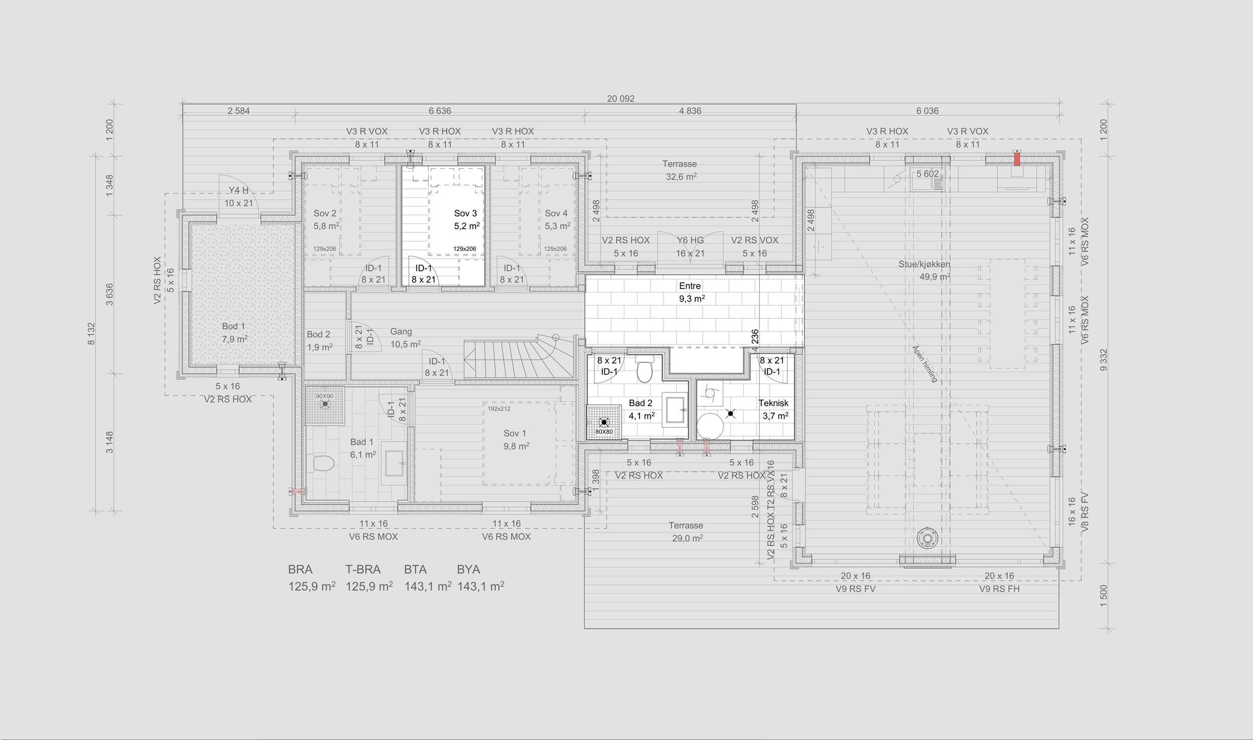
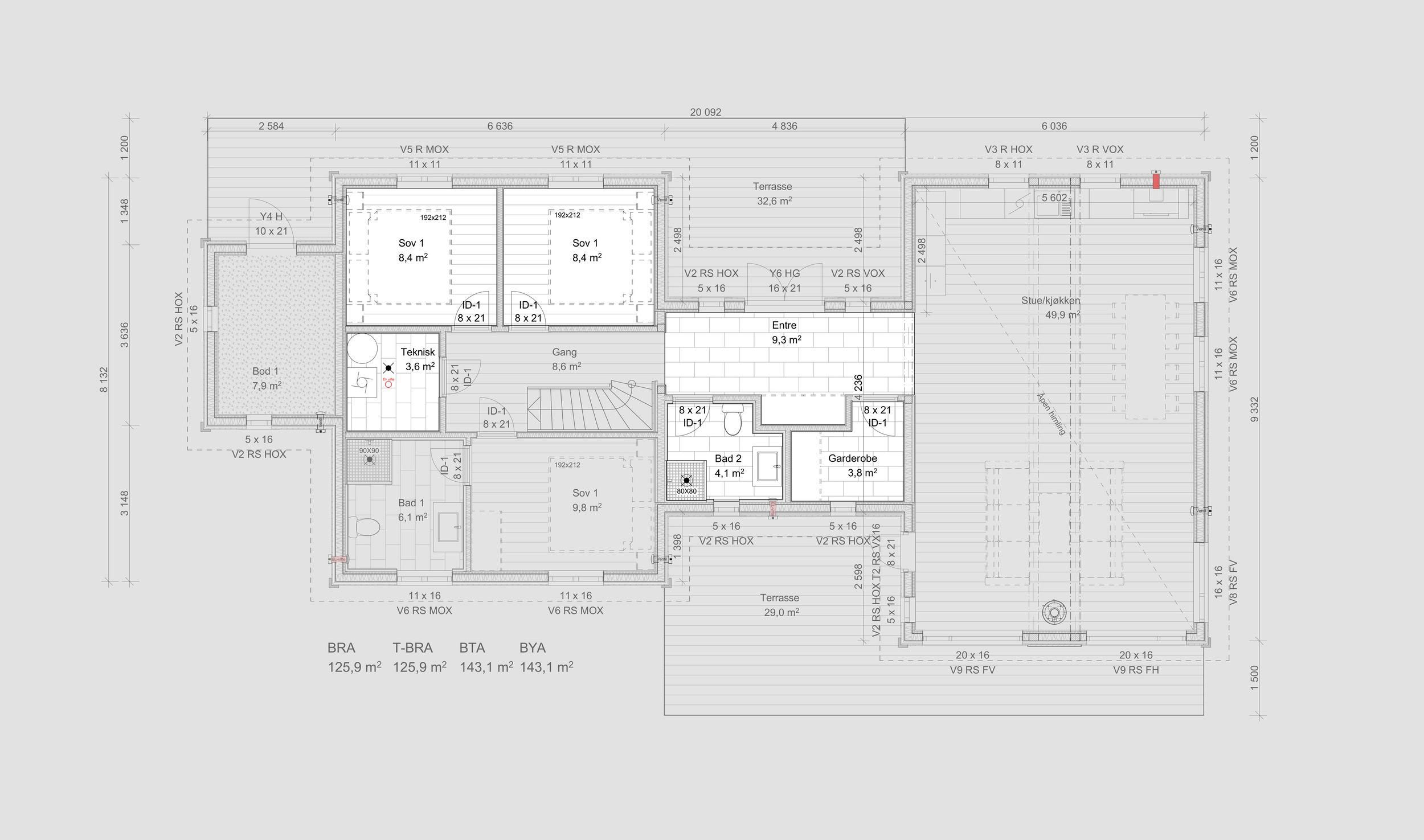
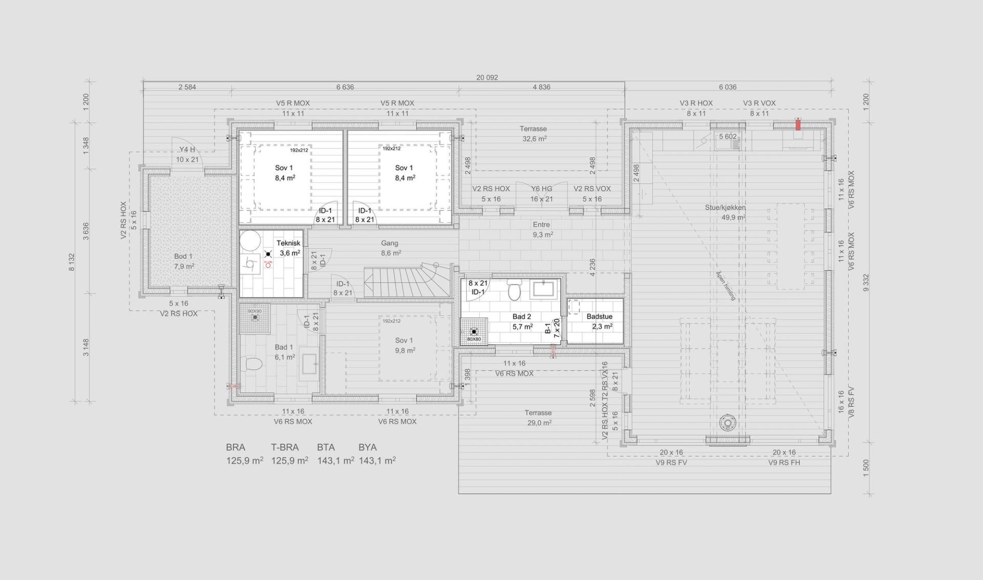
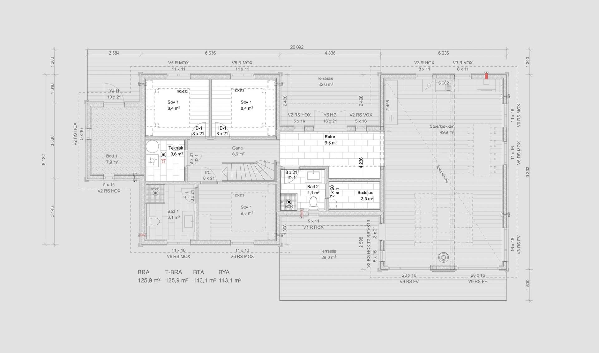
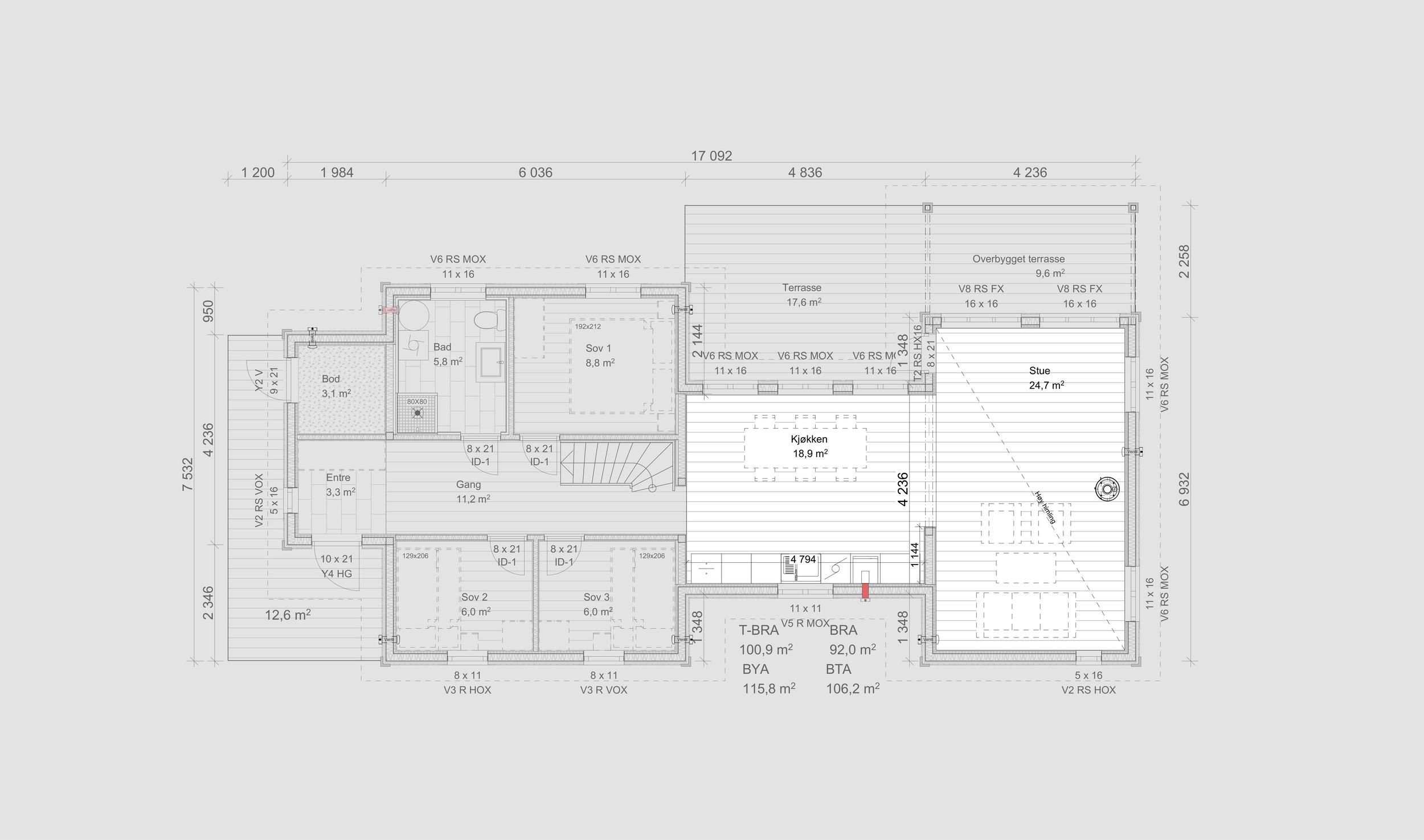
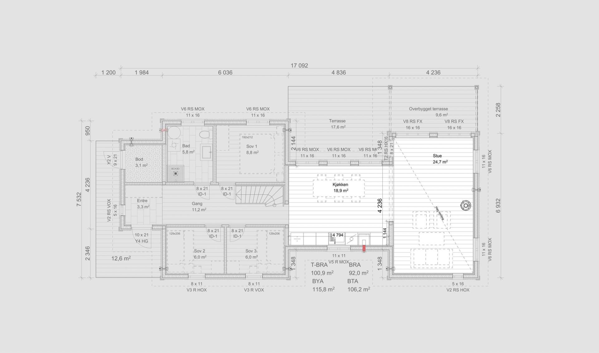
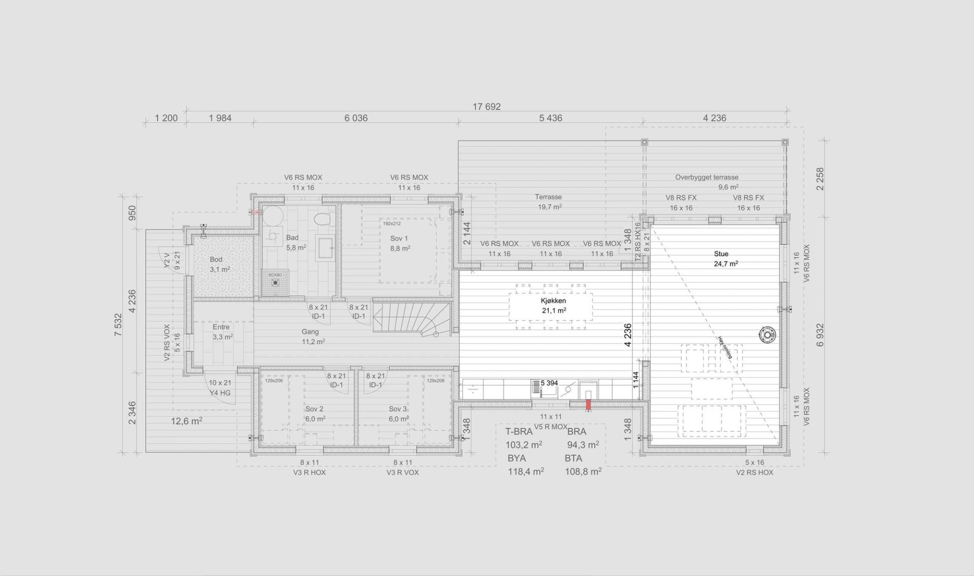
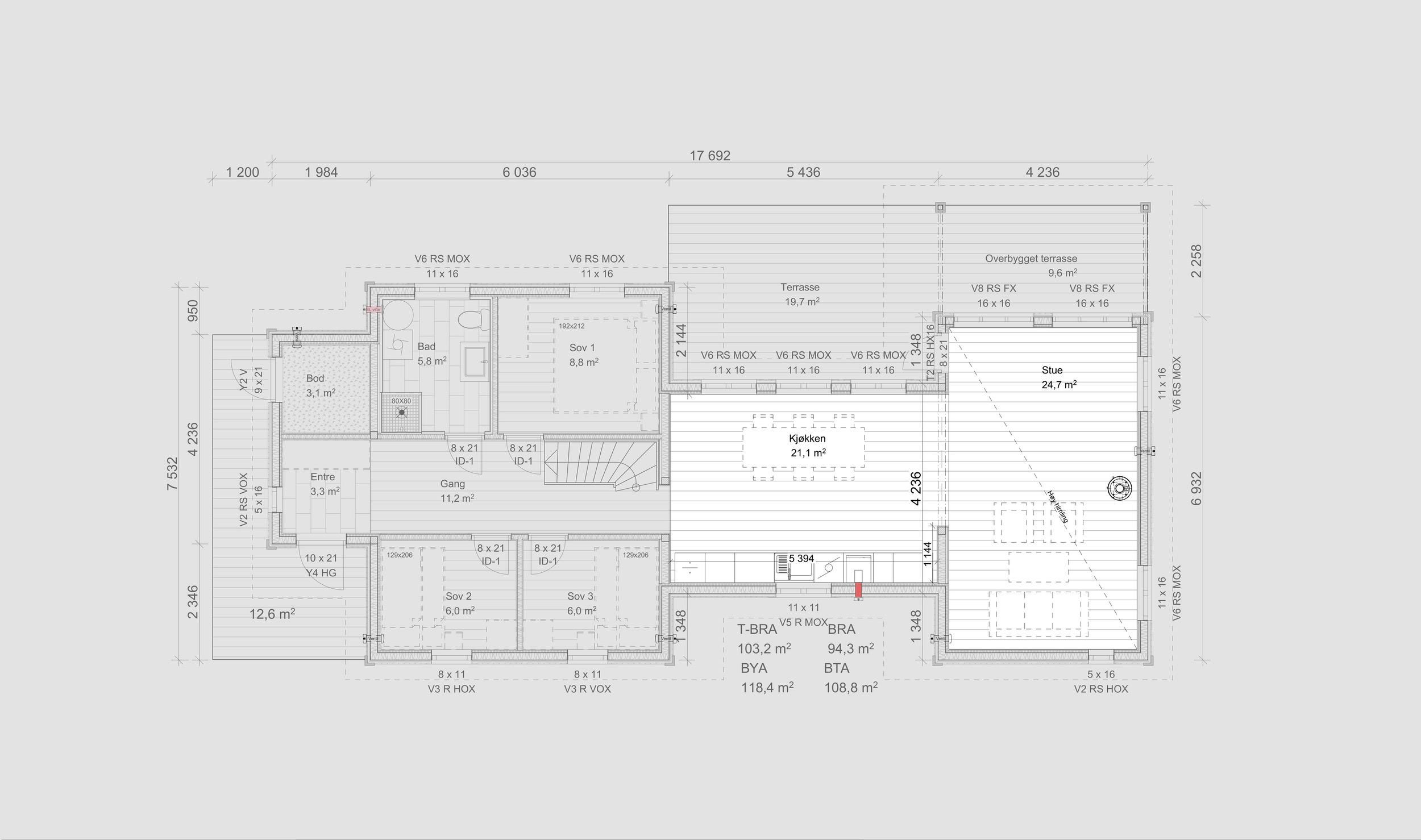
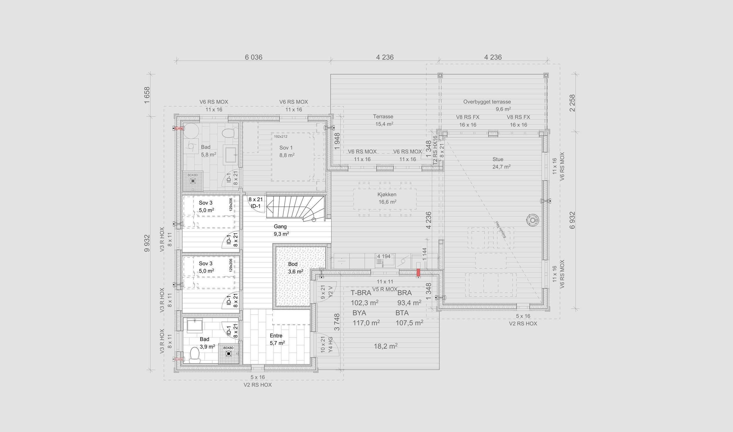
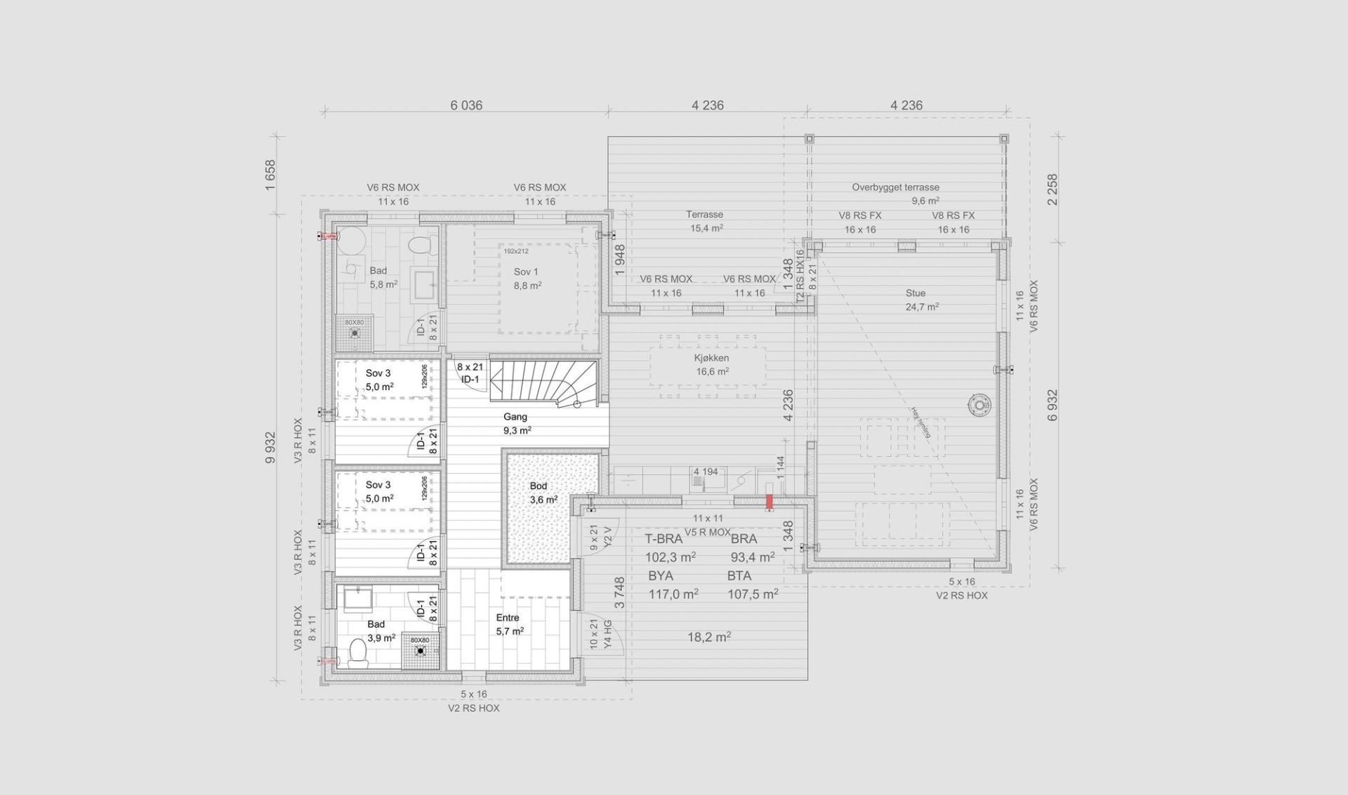
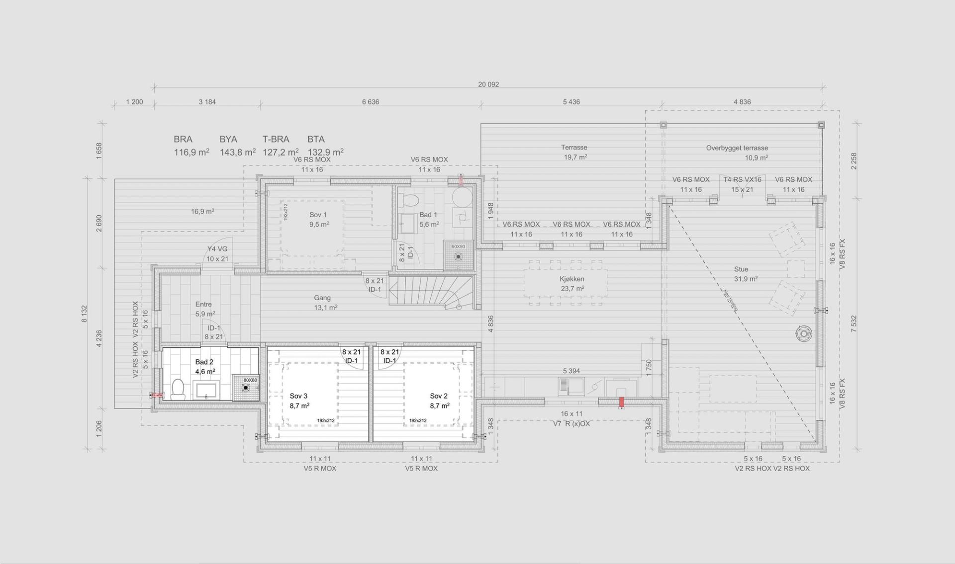
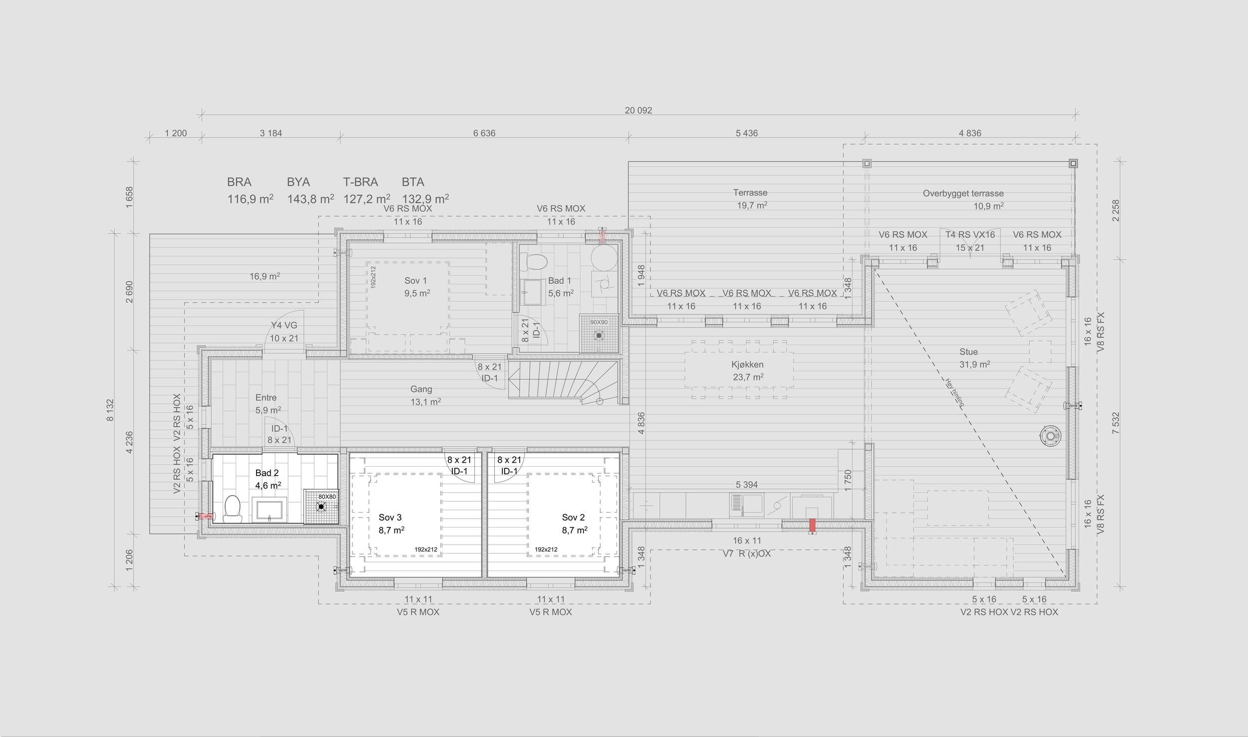
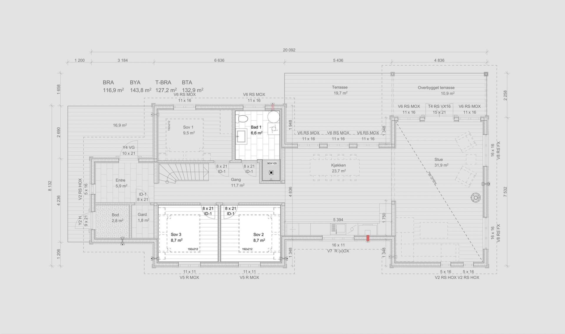
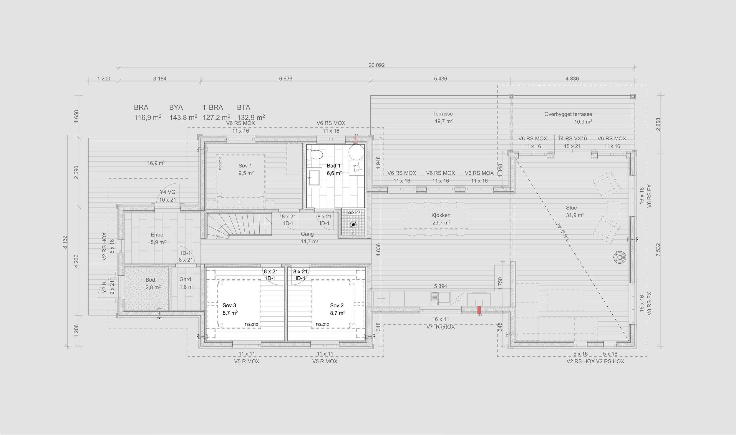
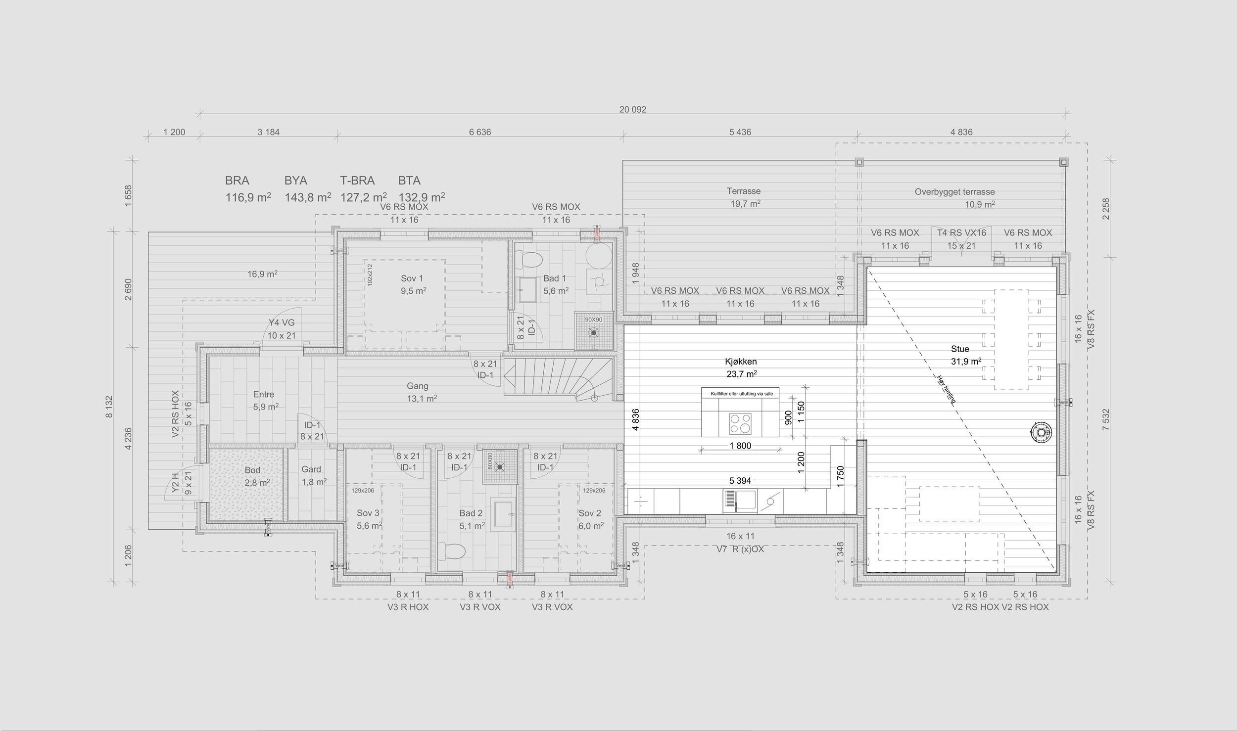
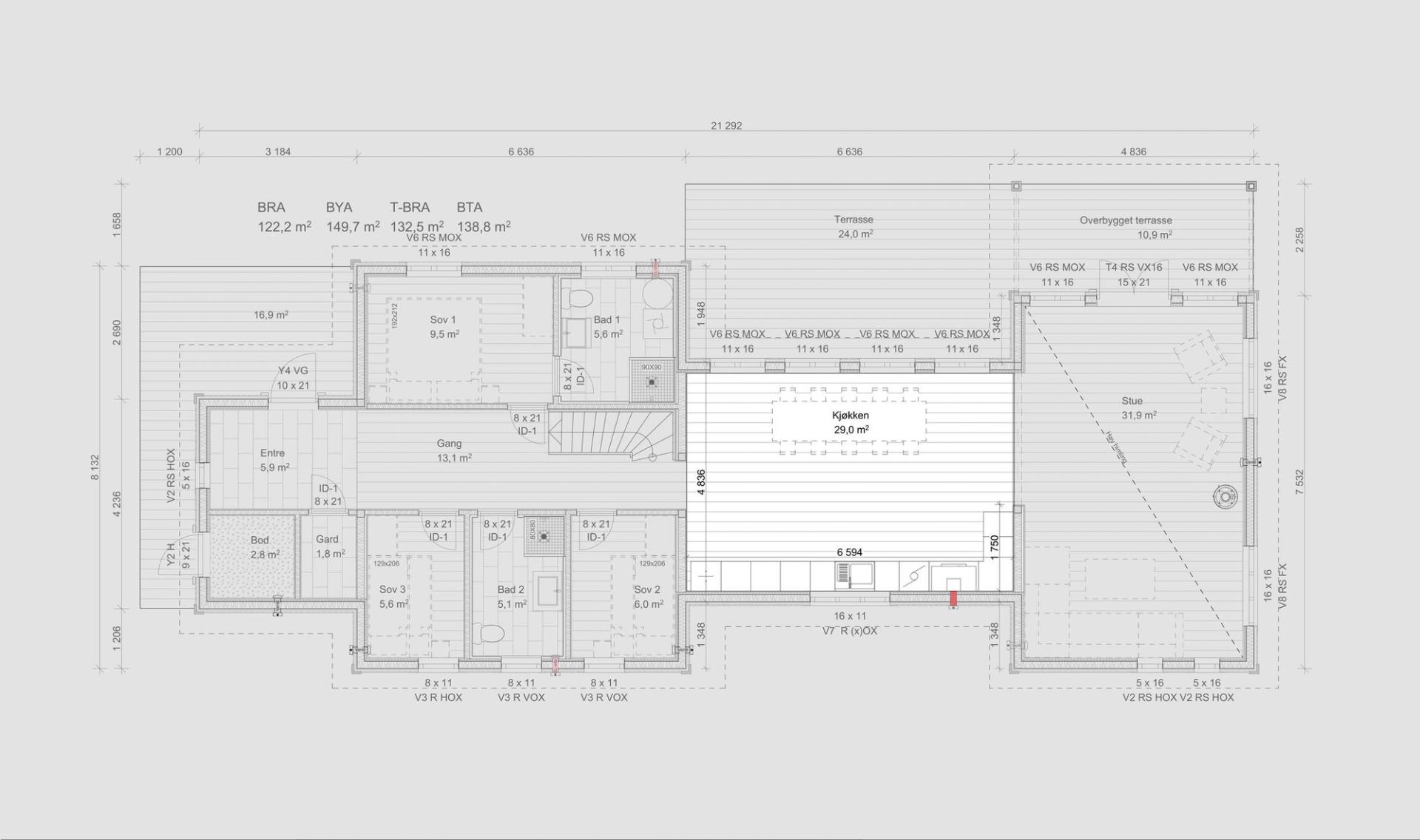
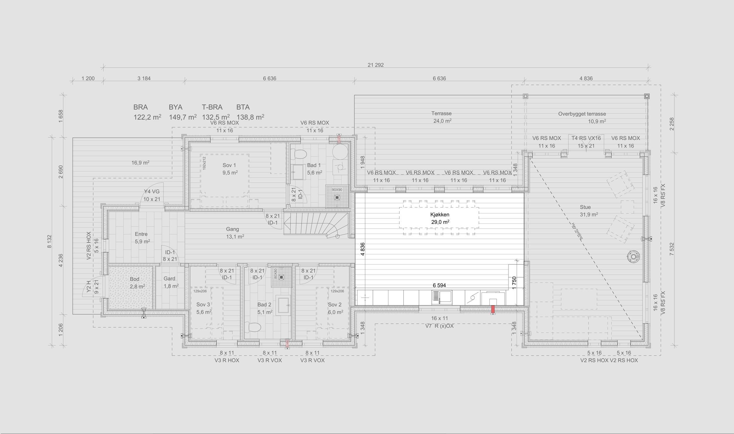
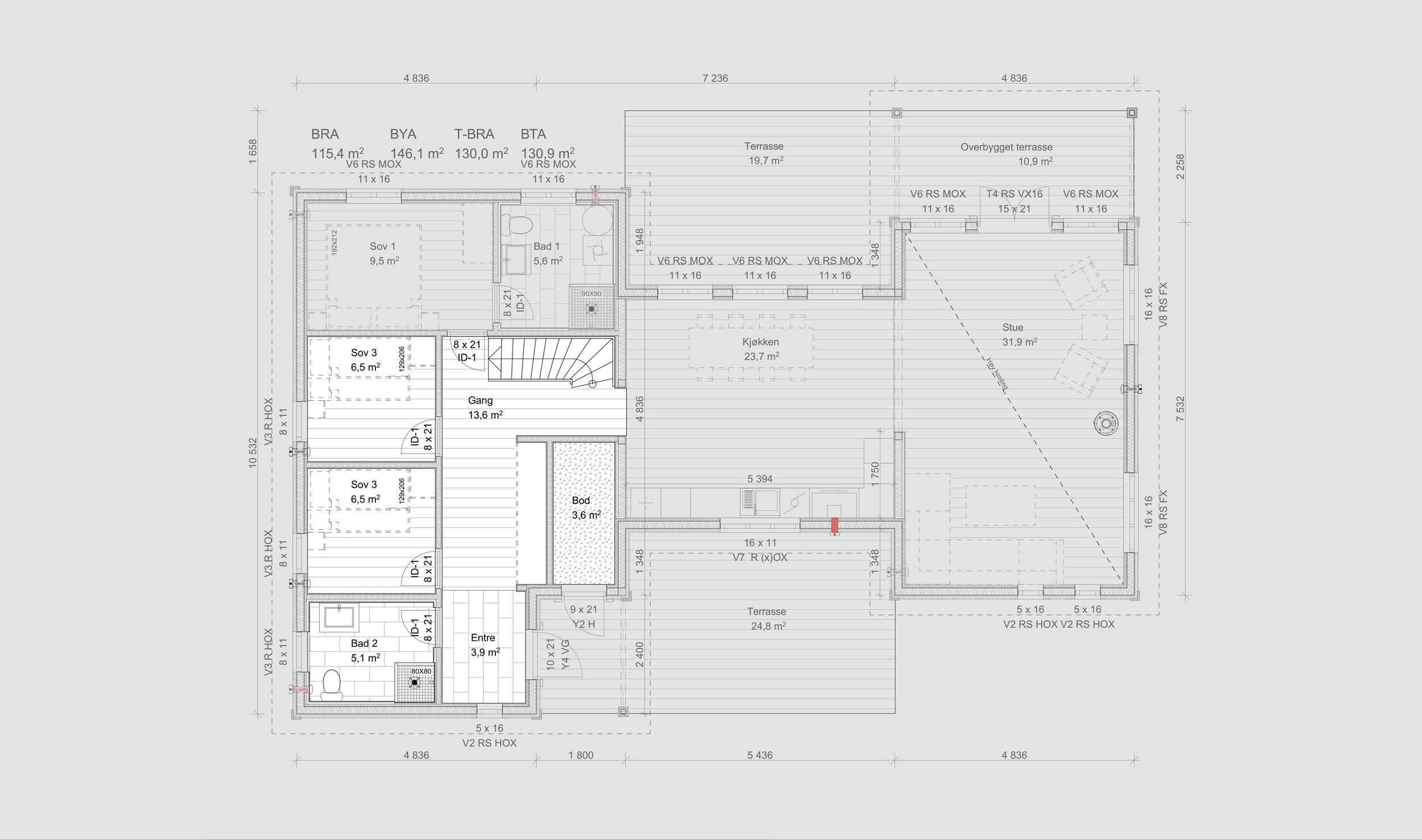
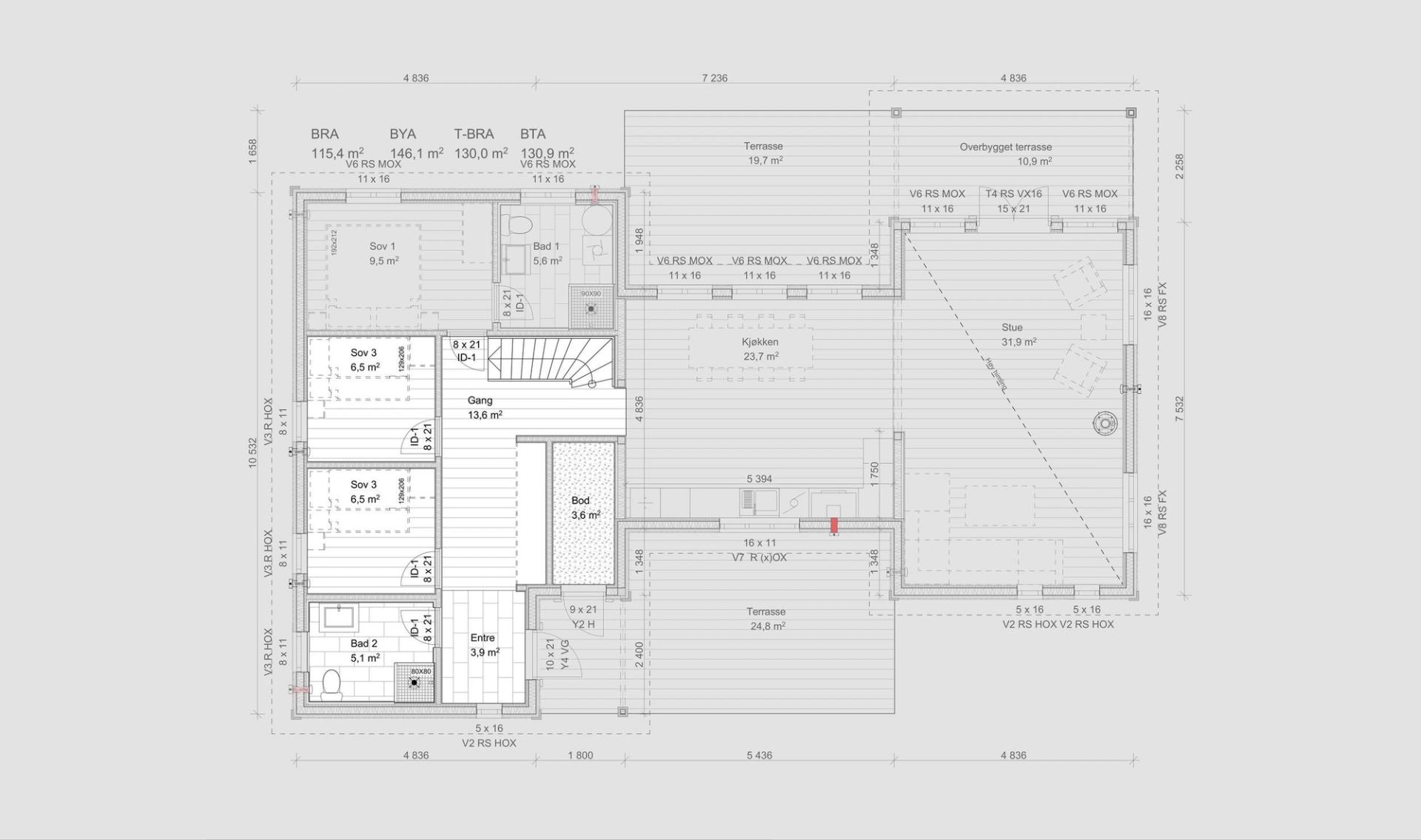
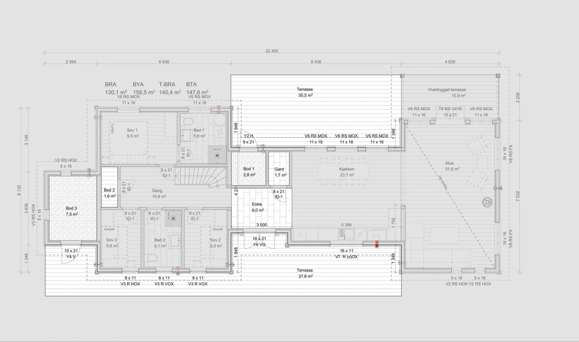
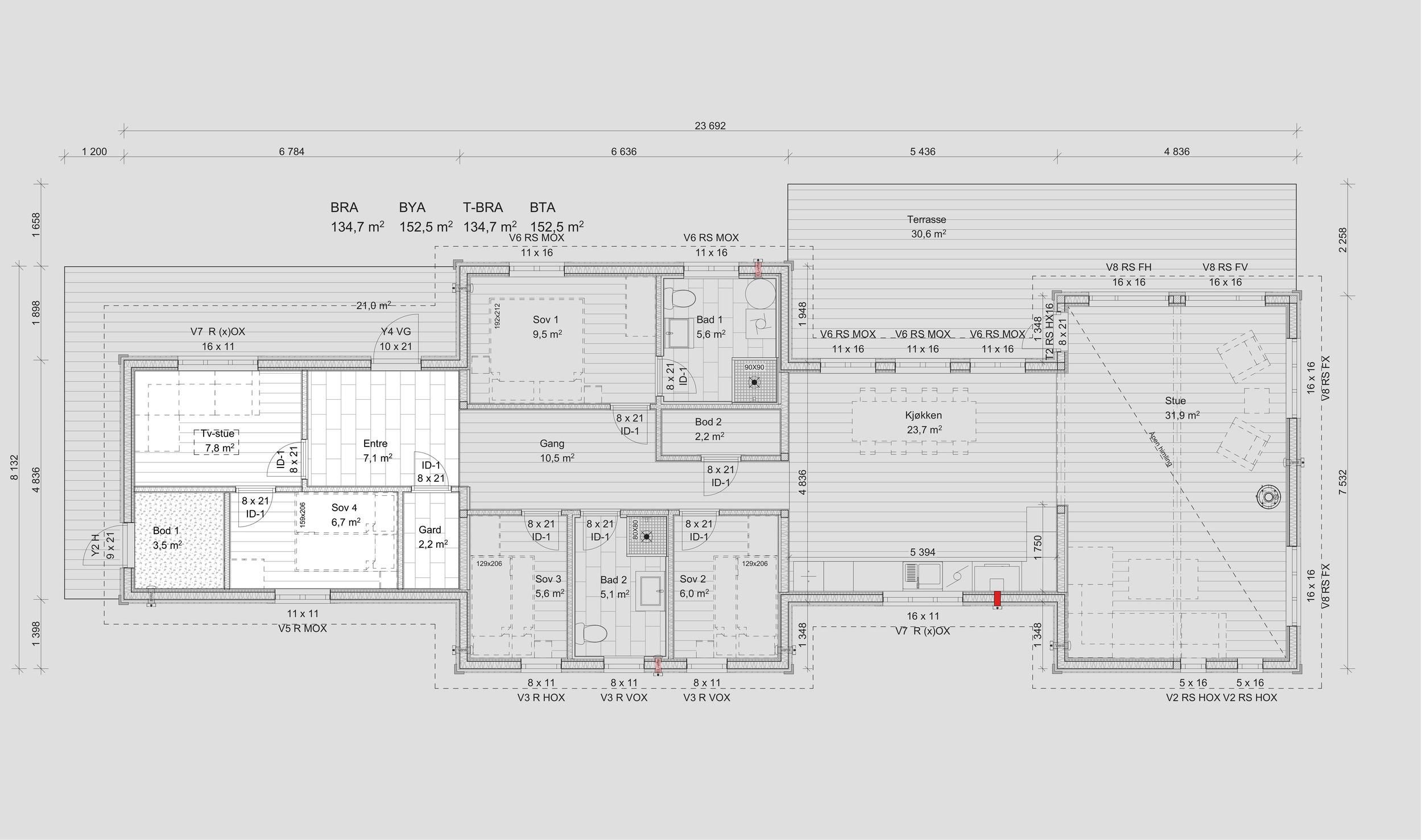
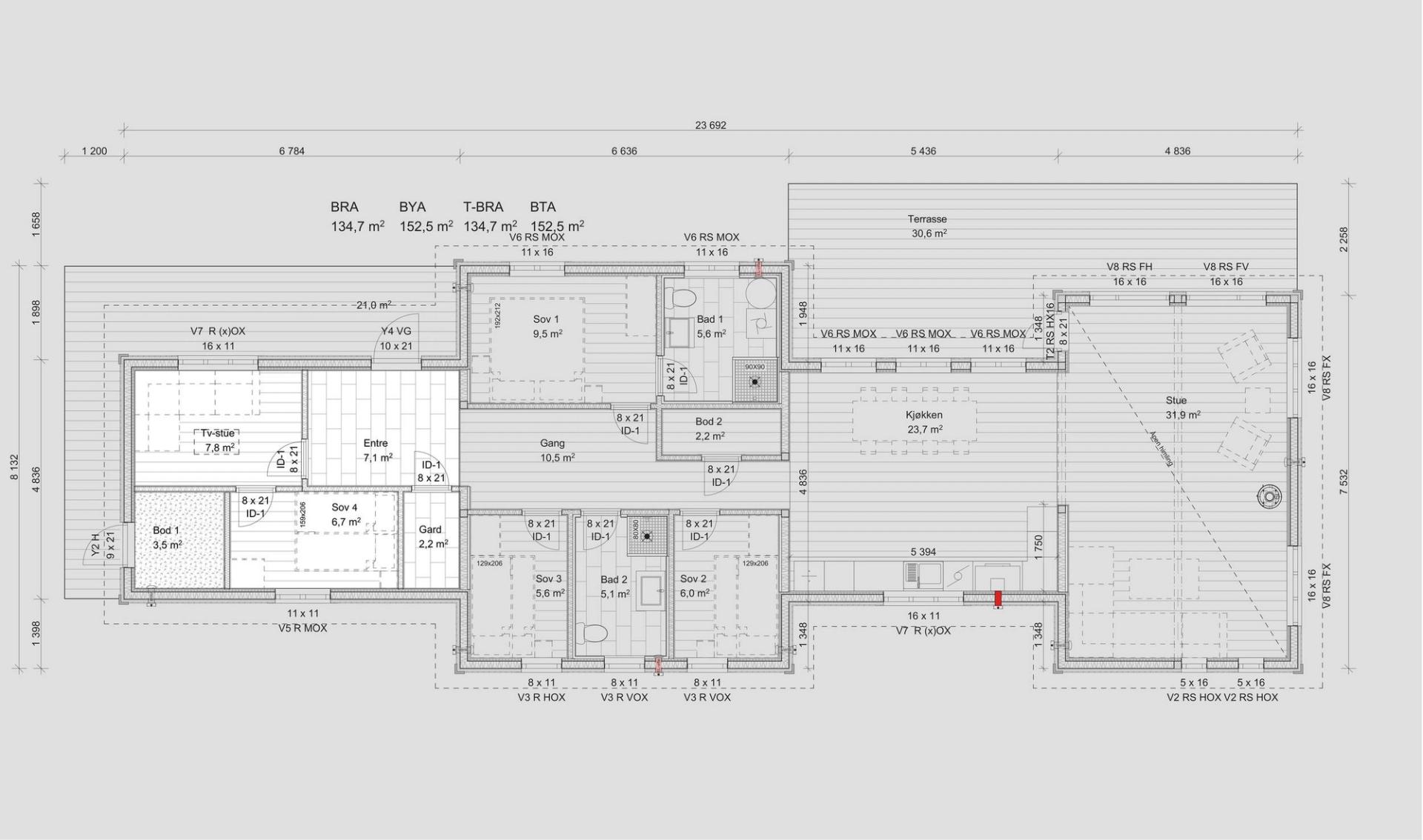
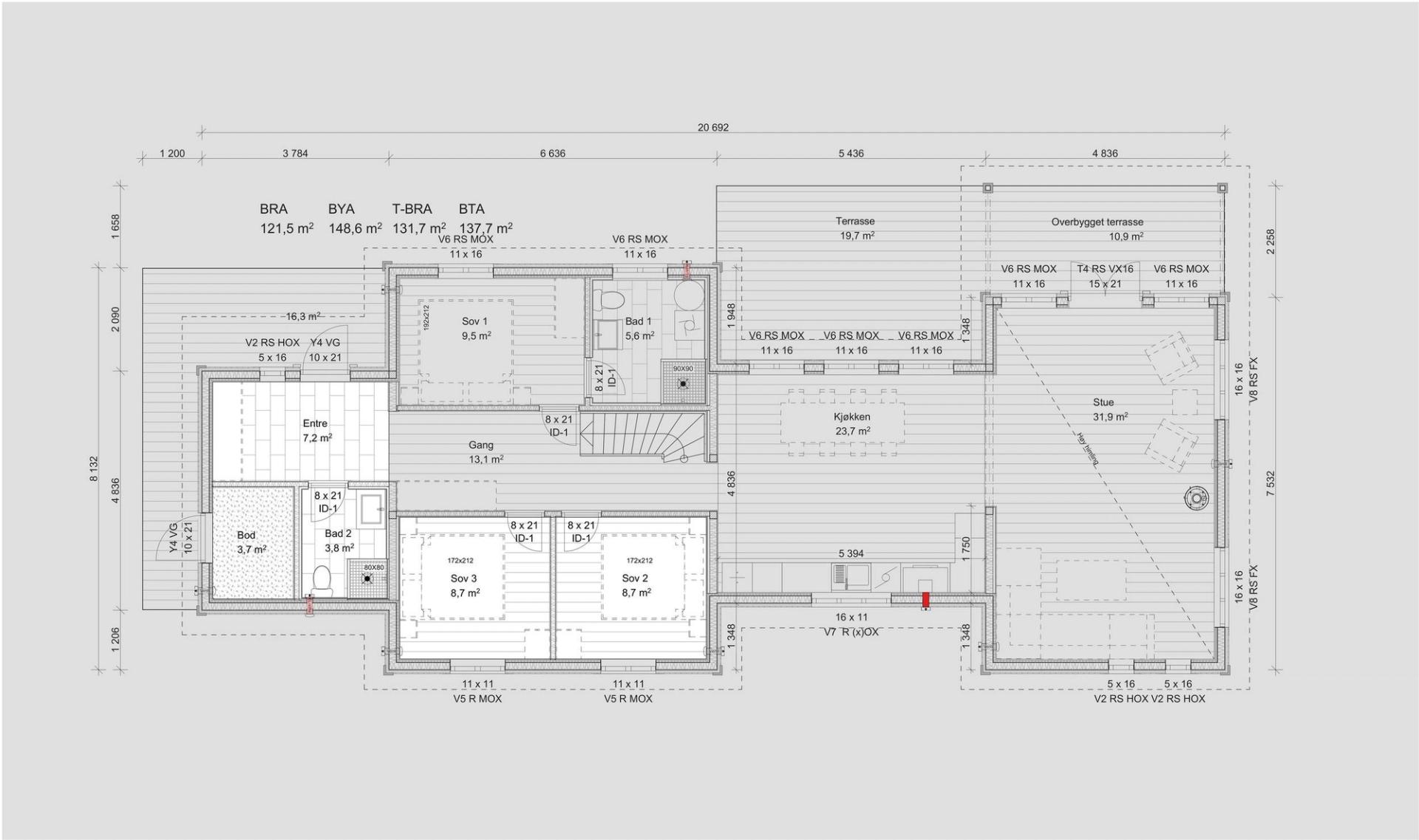
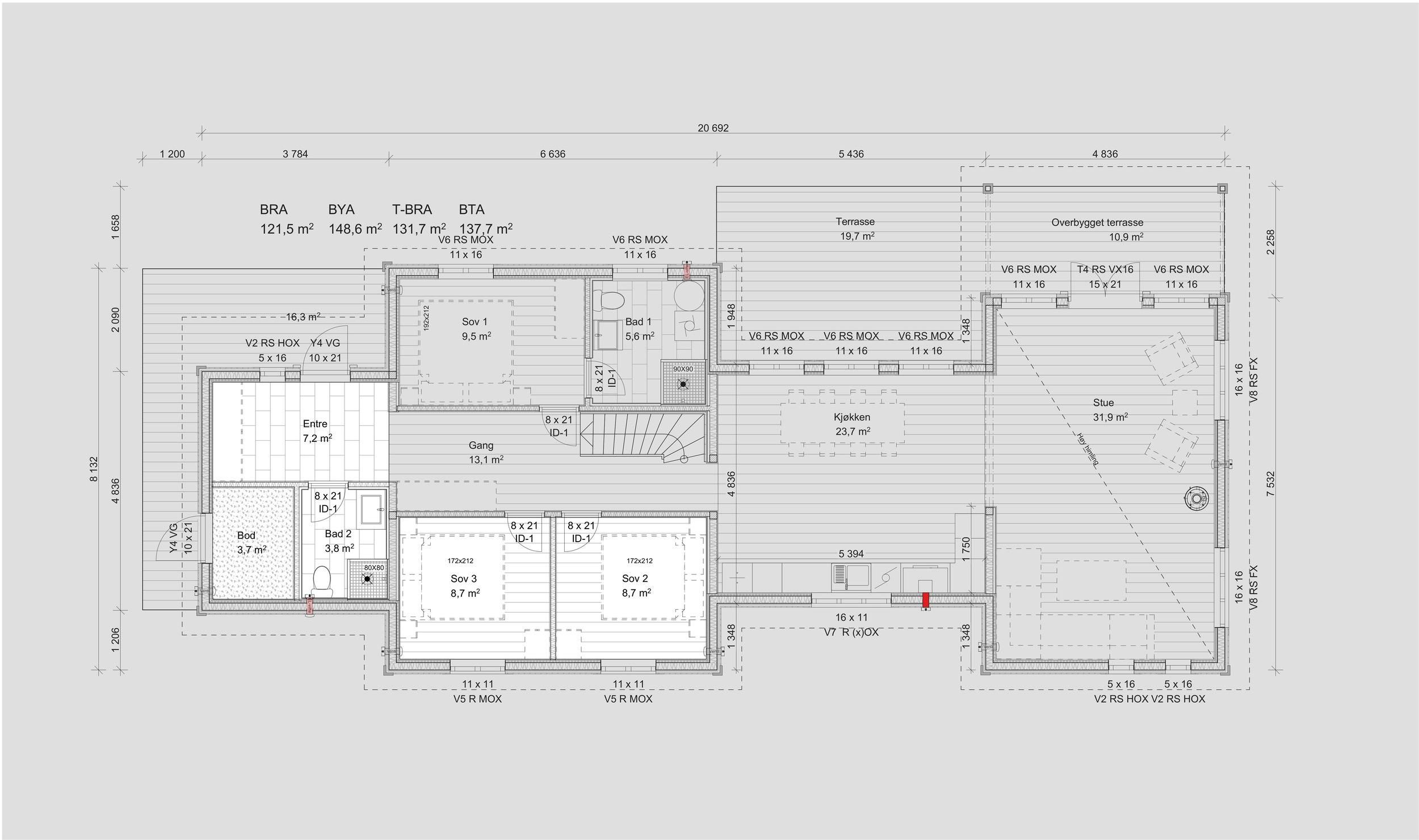
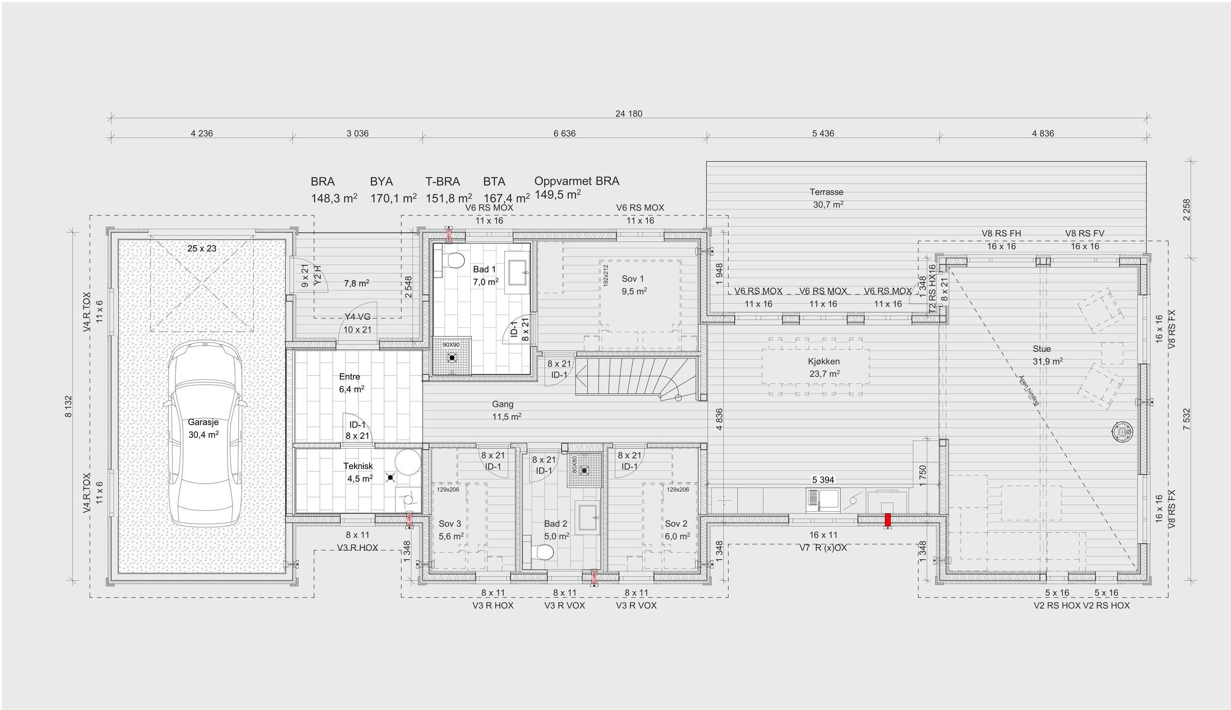
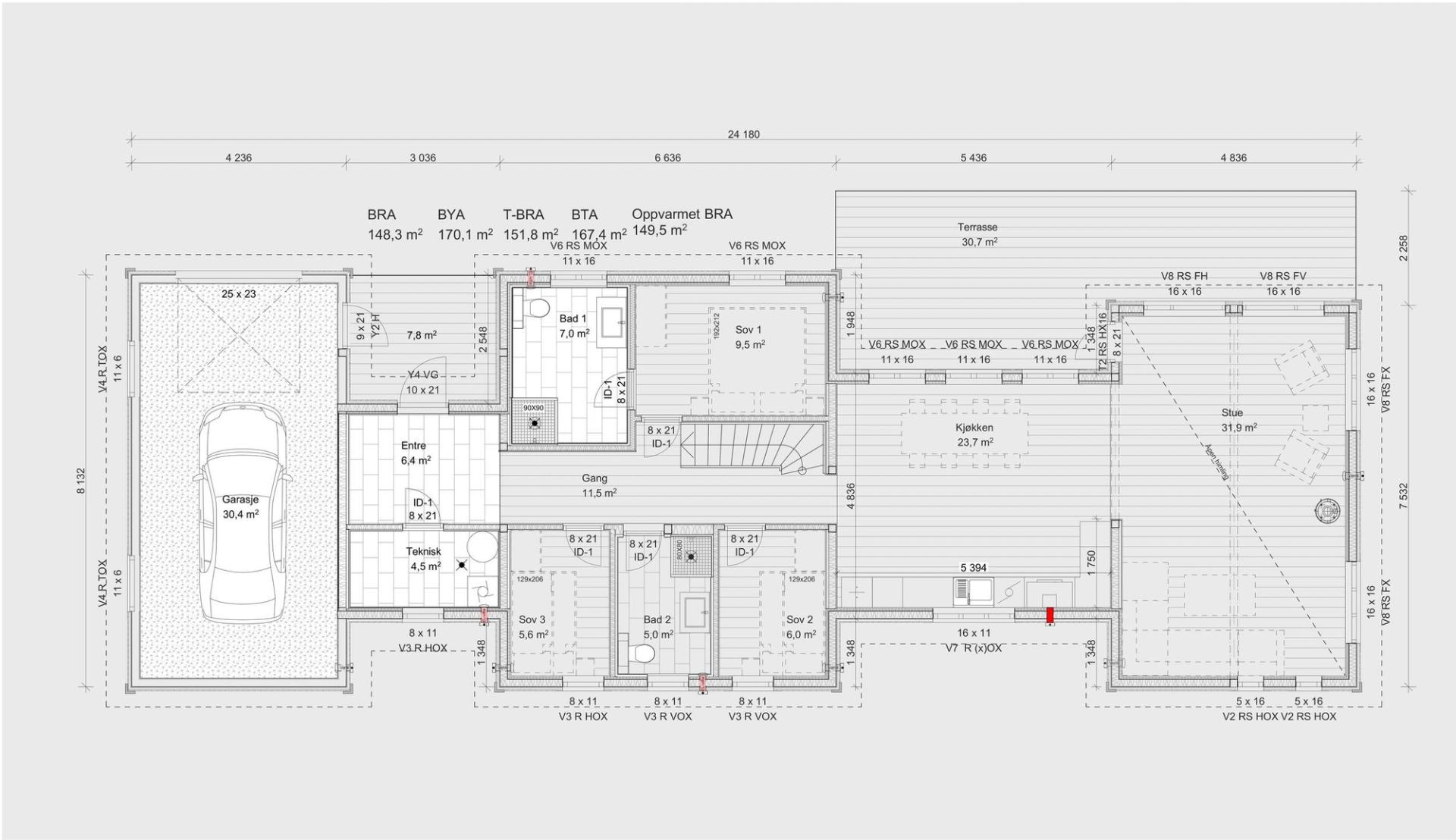
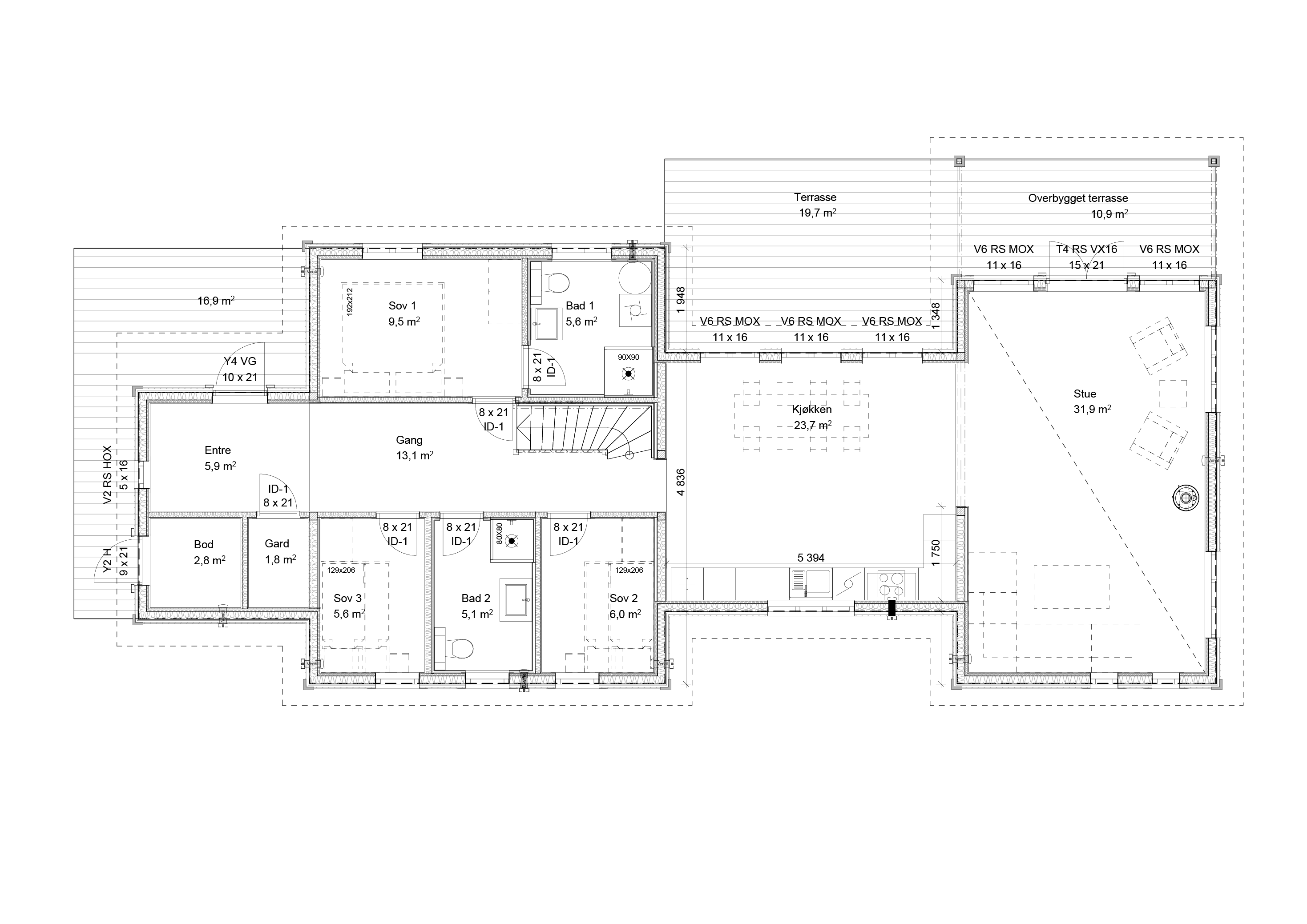
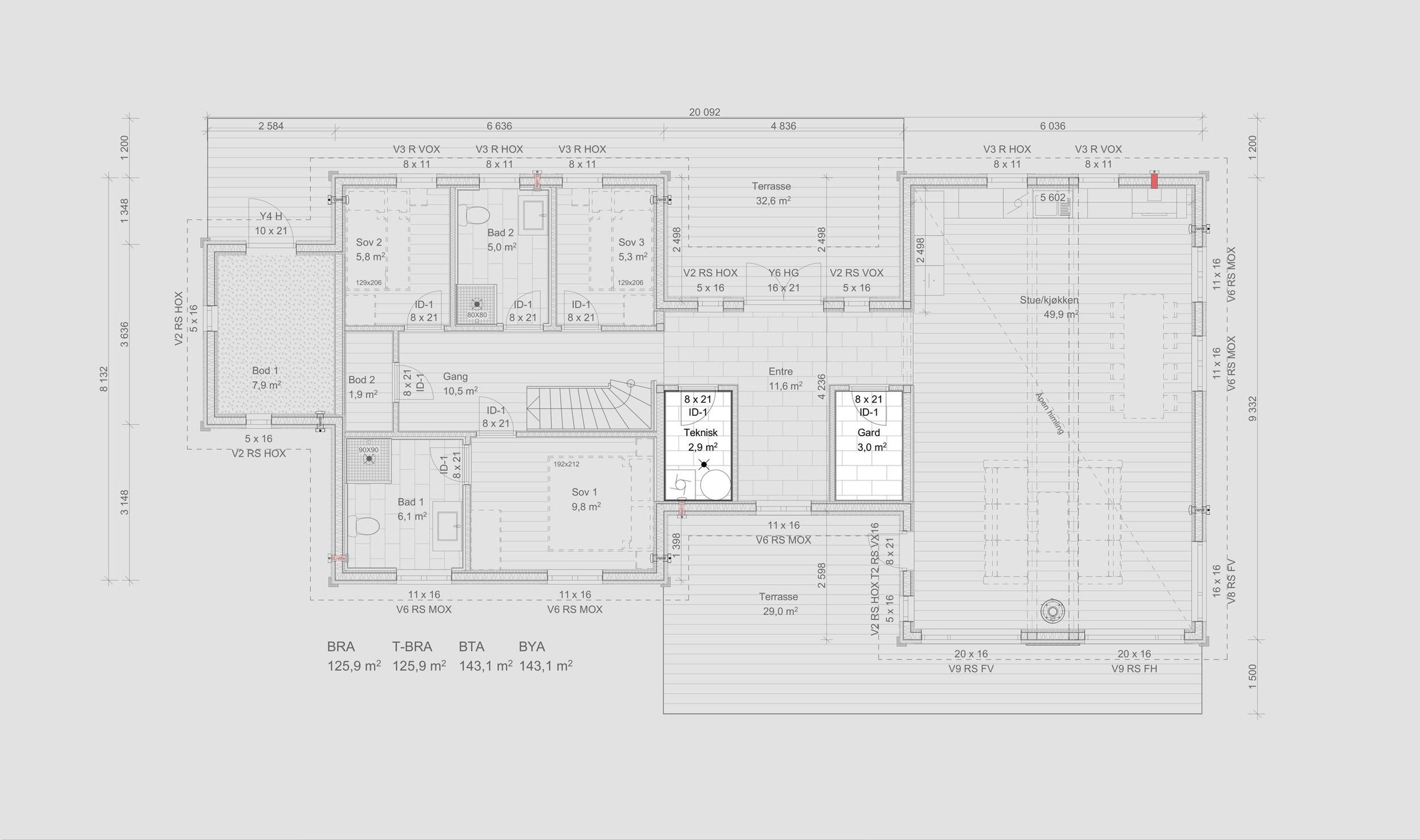
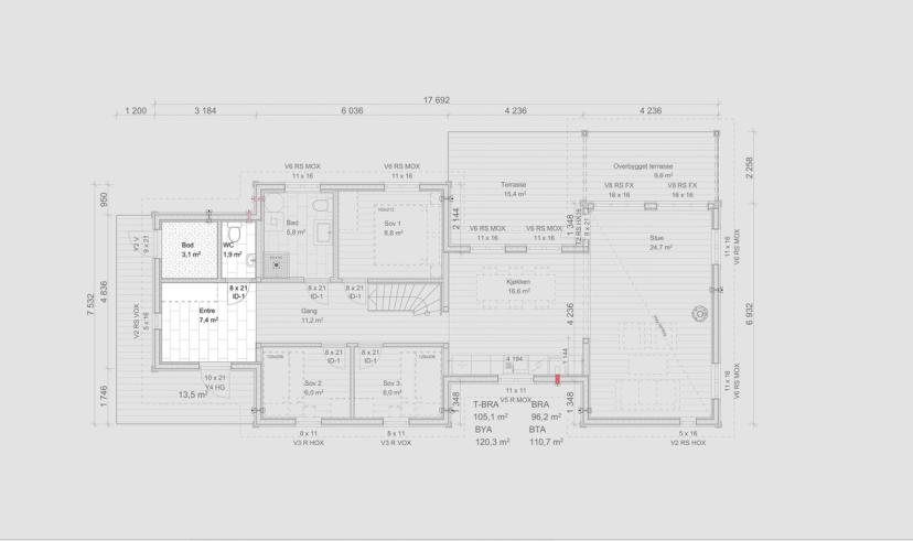
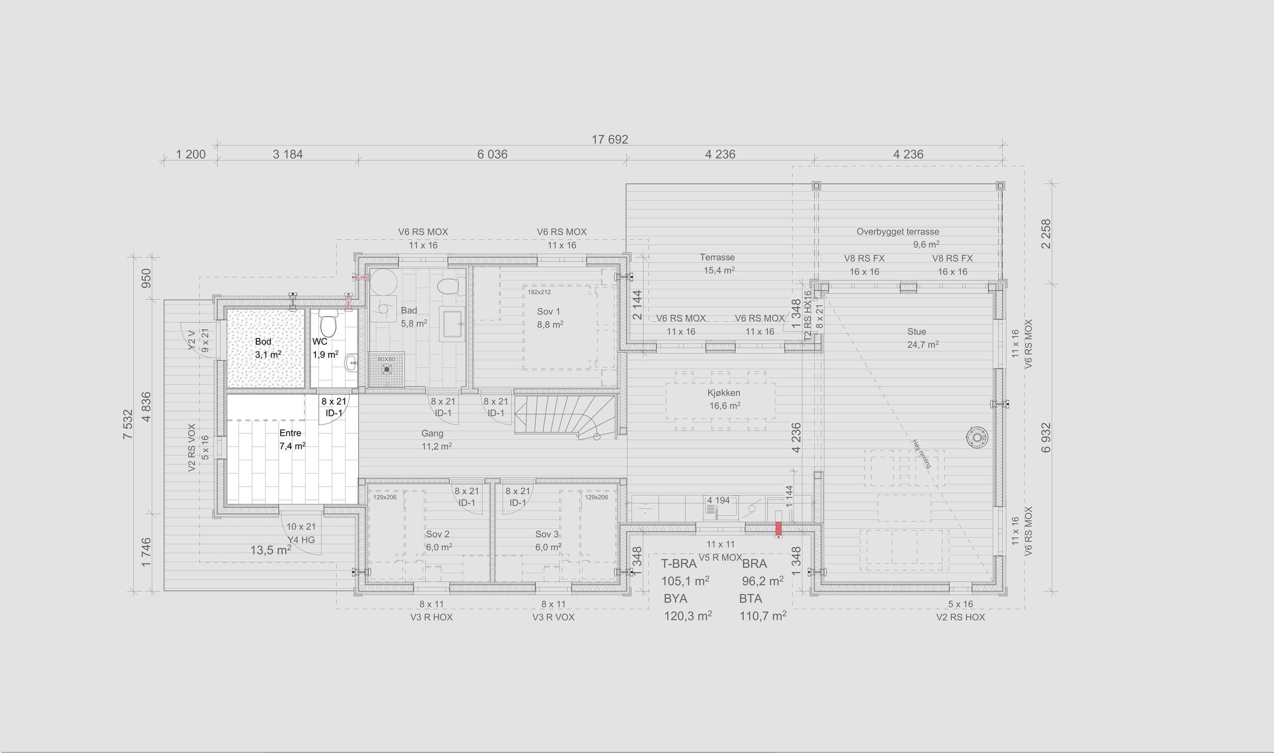
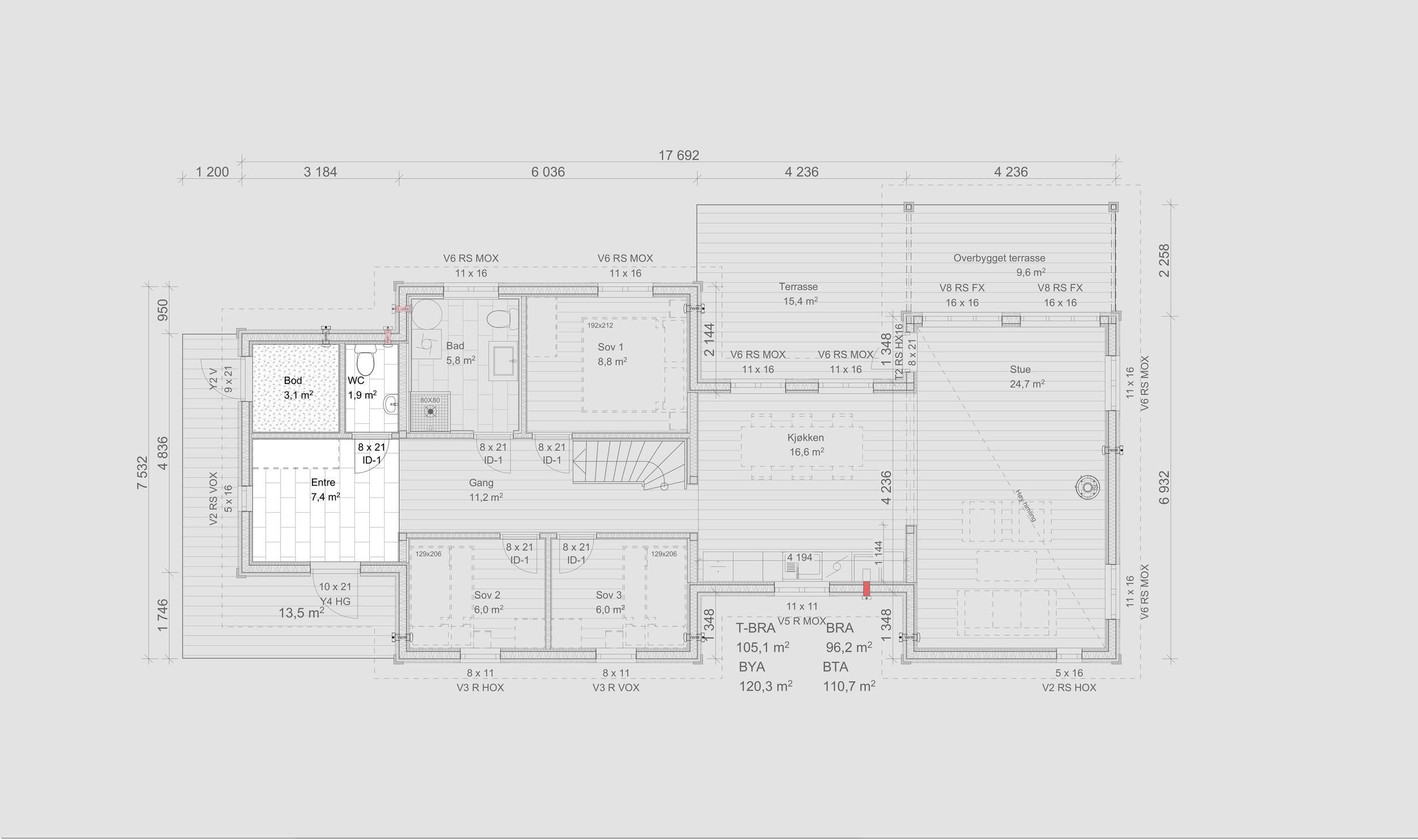
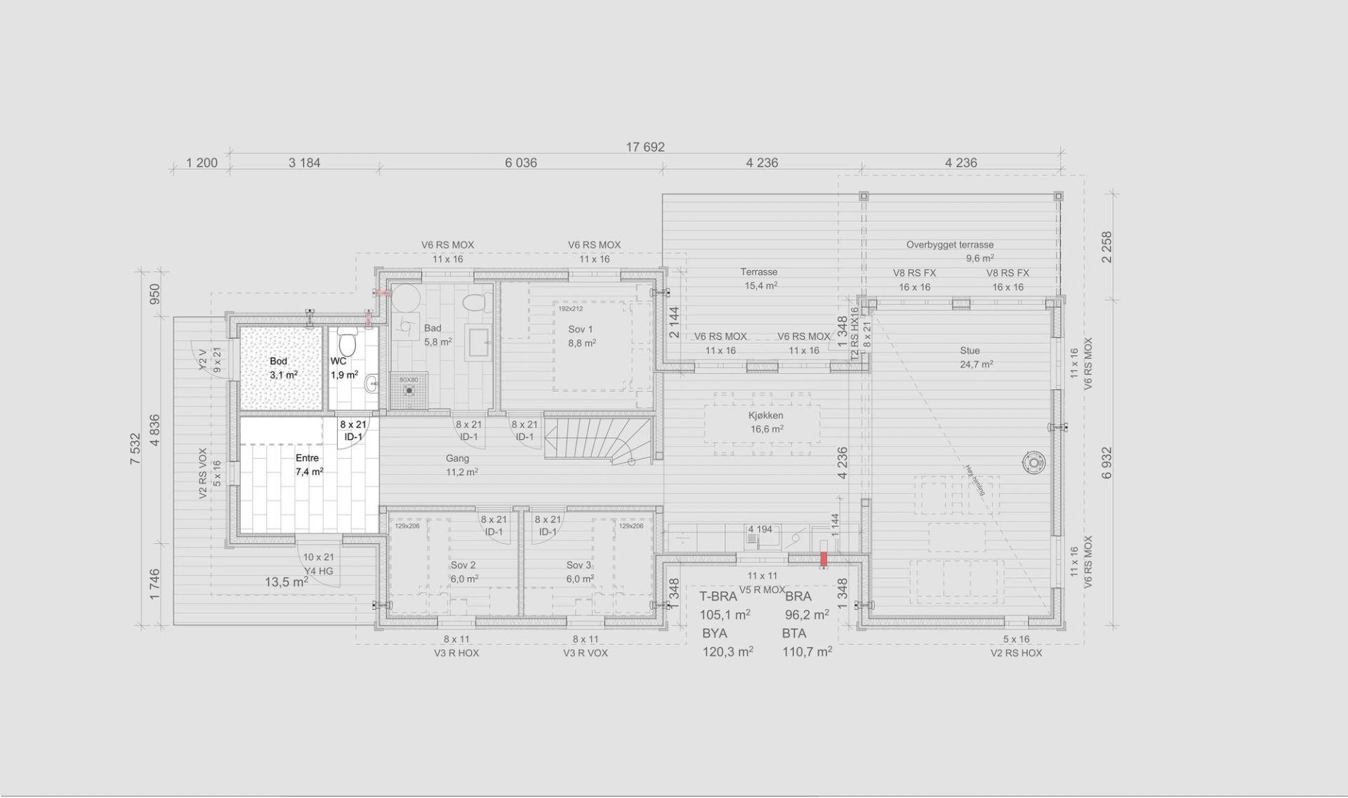
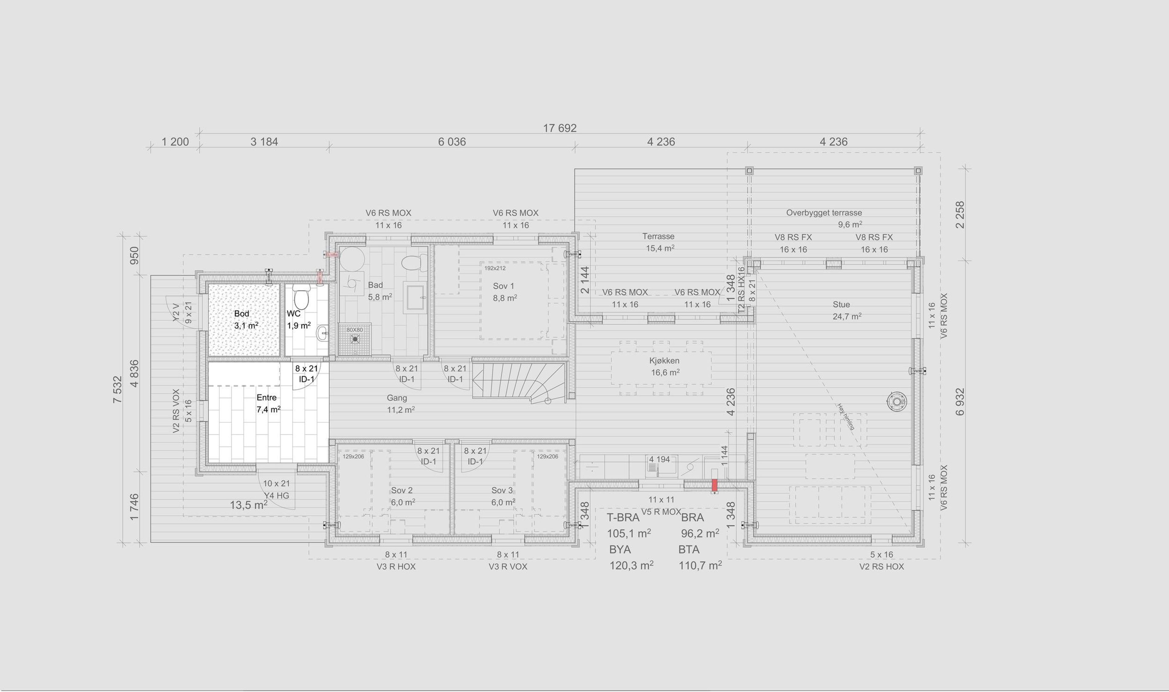
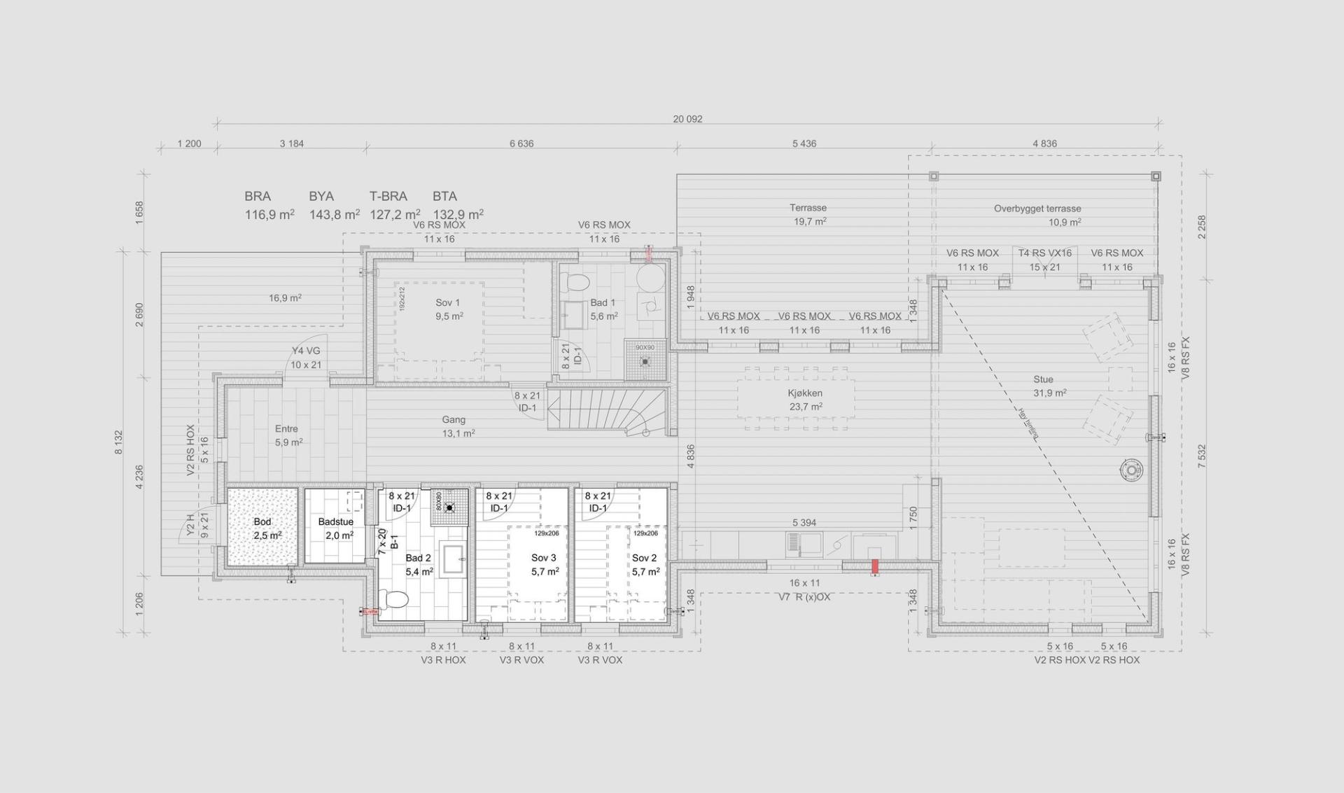
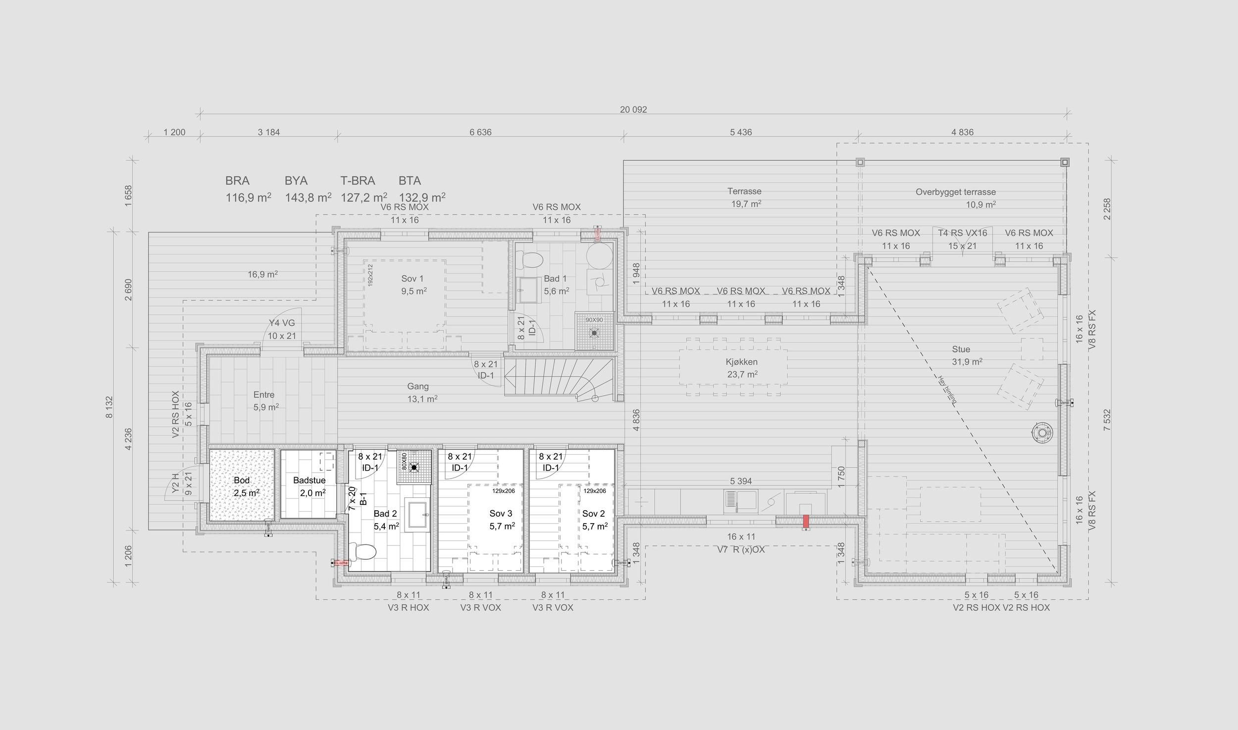
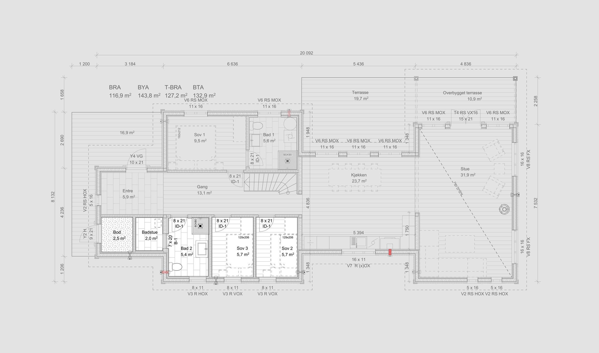
Våre hytter med hems er romslige og fleksible familiehytter med åpne allrom, store vindusflater og et tradisjonelt uttrykk som glir naturlig inn i omgivelsene. Hovedplanet har gode soner for samvær, med god takhøyde i stuen og en åpen løsning mellom kjøkken og oppholdsrom.
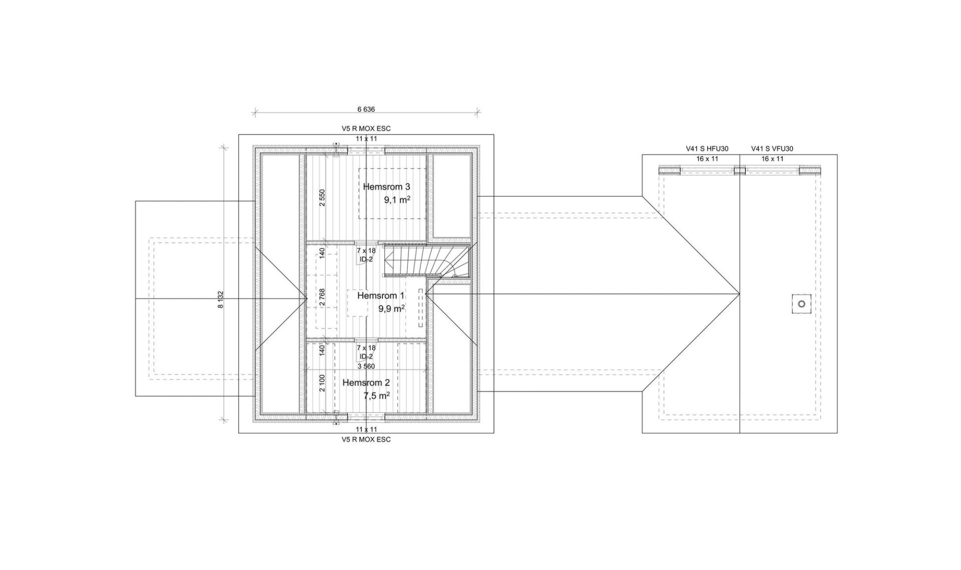
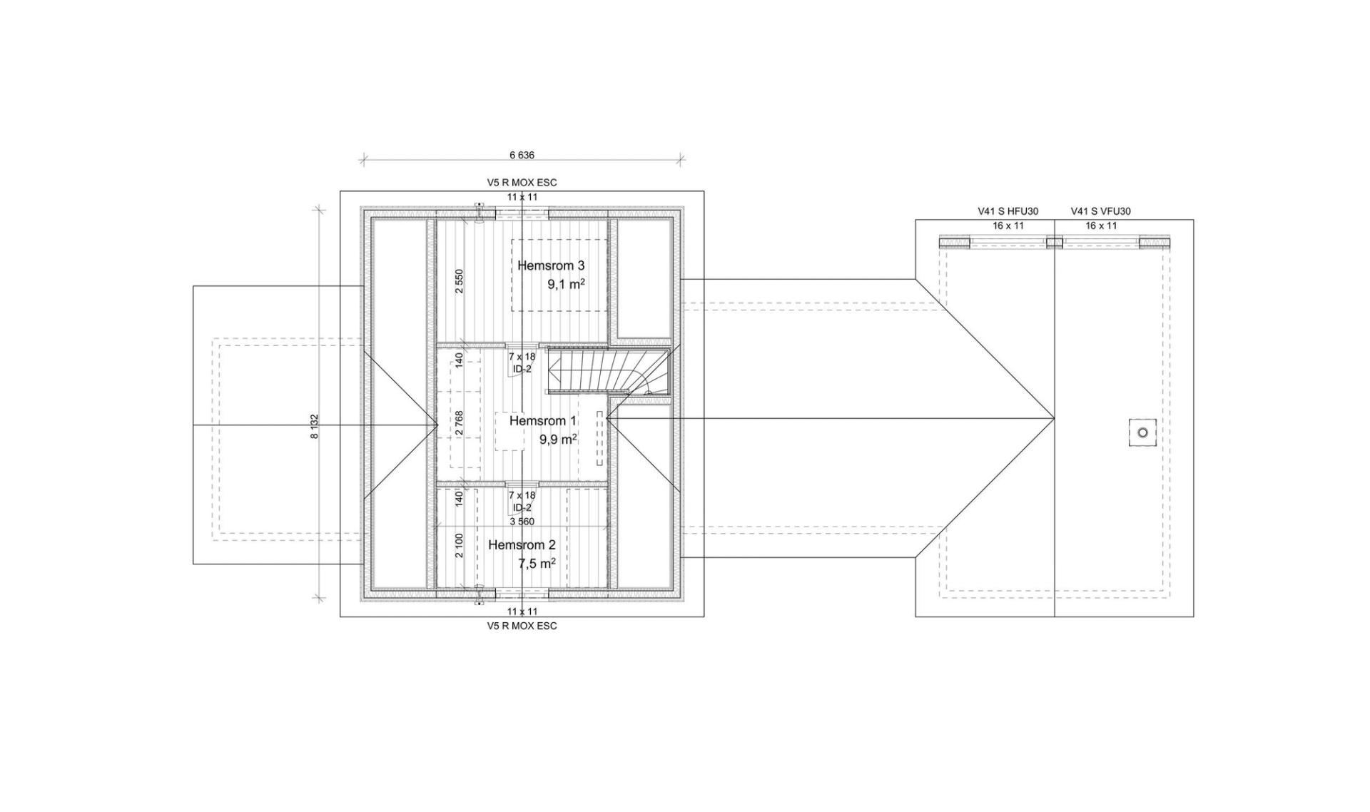
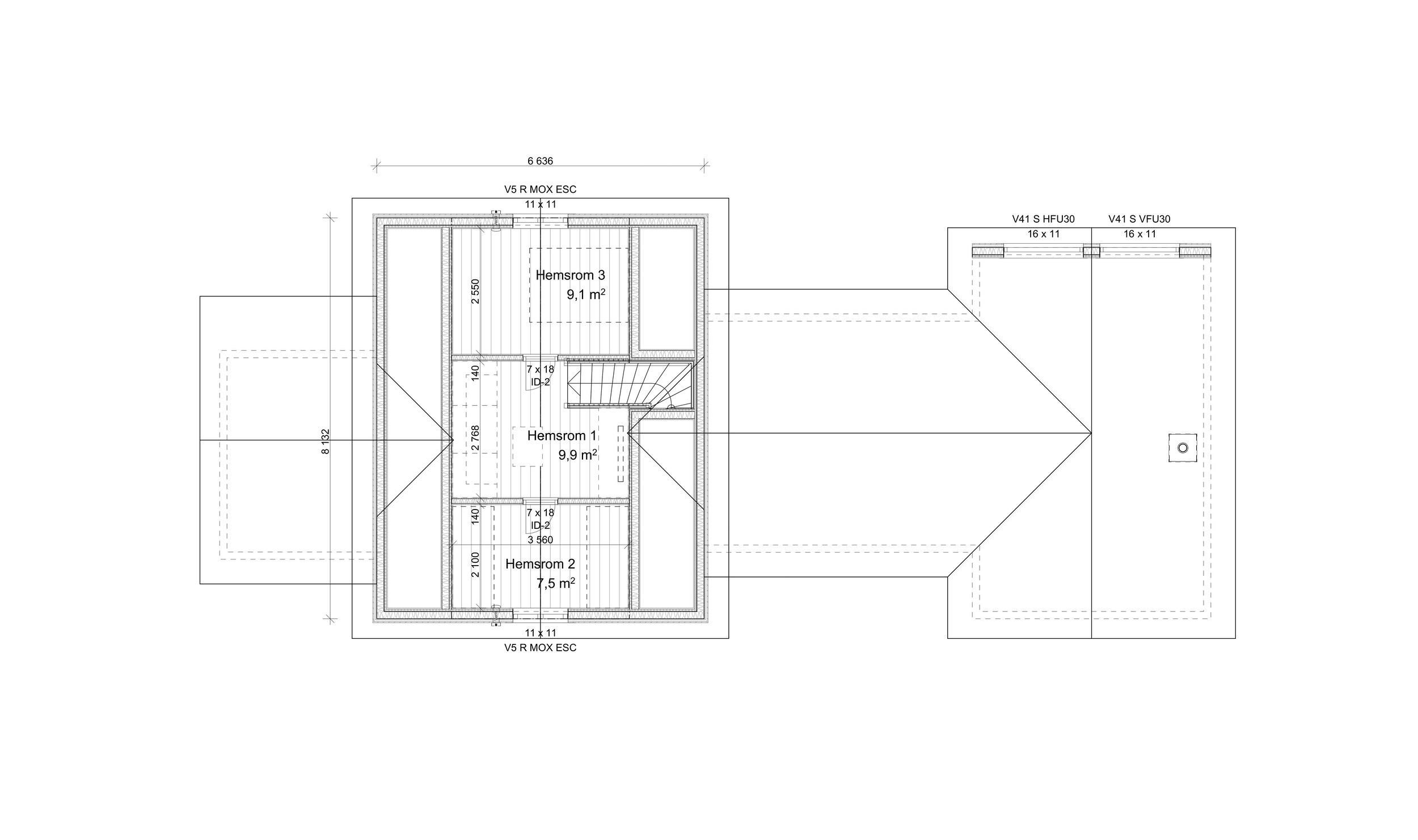
Hemsene gir en ekstra etasje med høyde på opptil ca. 1,9 meter og kan deles inn i flere rom. Dette gir stor fleksibilitet i bruken av hytten og ekstra plass uten at arealet inngår i hyttas bruksareal.
Hytter med hems passer for deg som er småbarnsfamilie og ønsker fleksible løsninger, og for dere som vil ha god plass når familie og gjester er på besøk. Denne hytteserien passer godt på tomter med mønehøyde rundt 5,5 meter, og kombinerer sosialt hovedplan med smart ekstraareal.
Rognli hems panorama
Nøkkelferdig 3.380.000,-
Storeble hems panorama
Nøkkelferdig 3.925.000,-
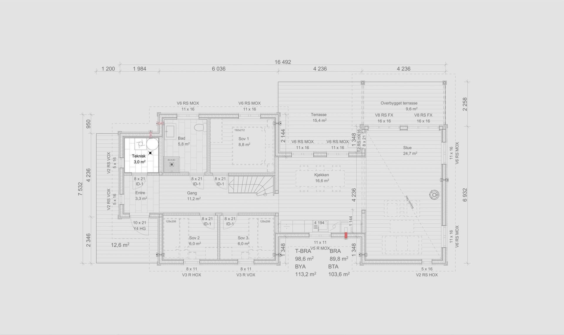
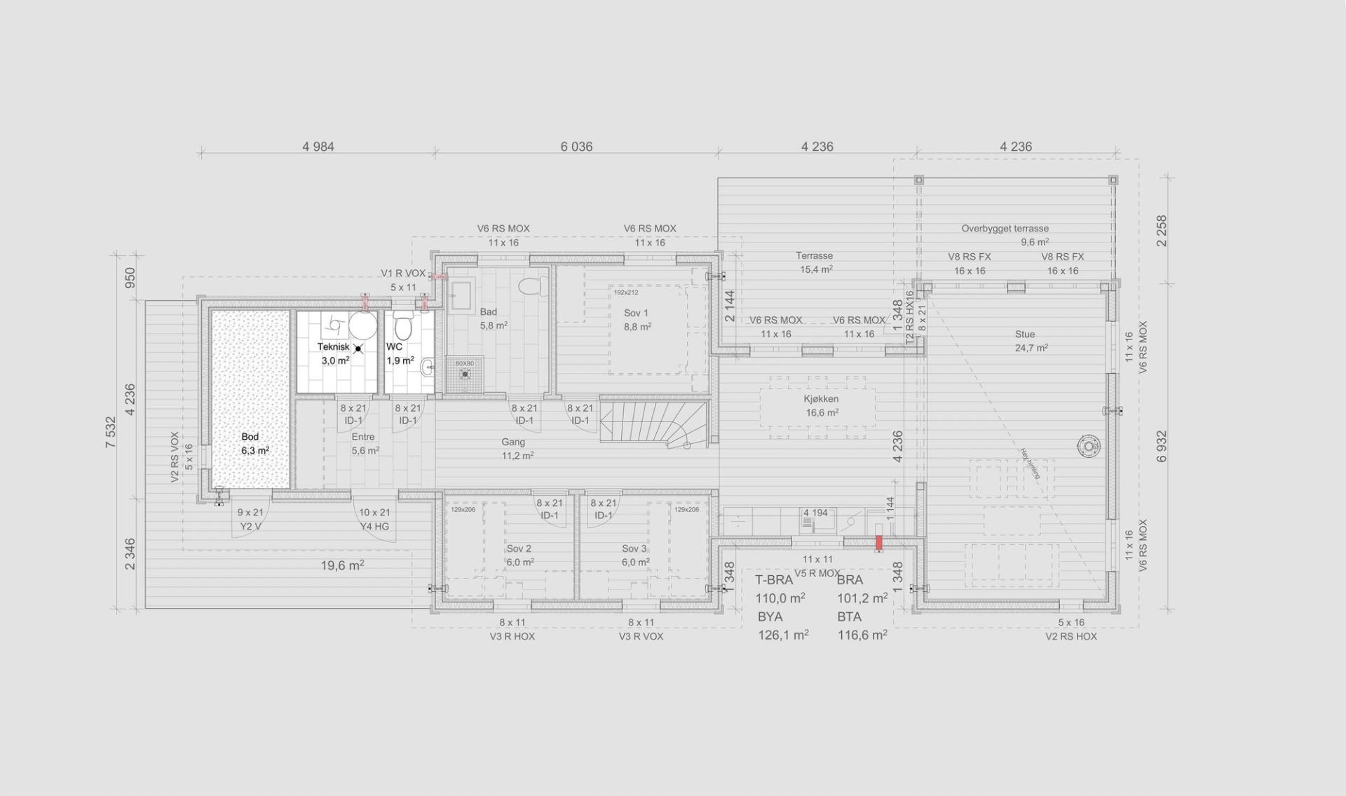
Hovden hems
Nøkkelferdig 4.350.000,-

Kundetilpassede løsninger
Hovden tilpasset
Rognli tilpasset
Storeble tilpasset

















































































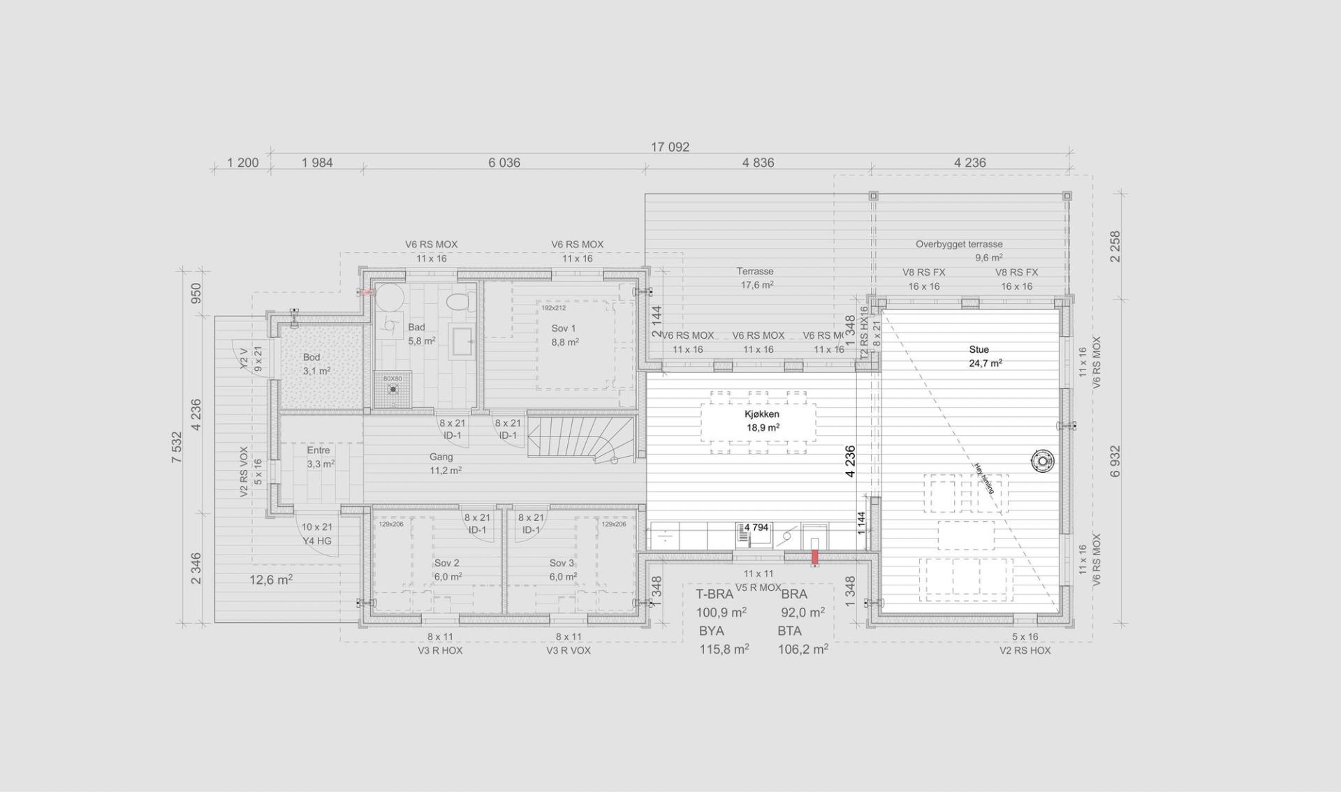
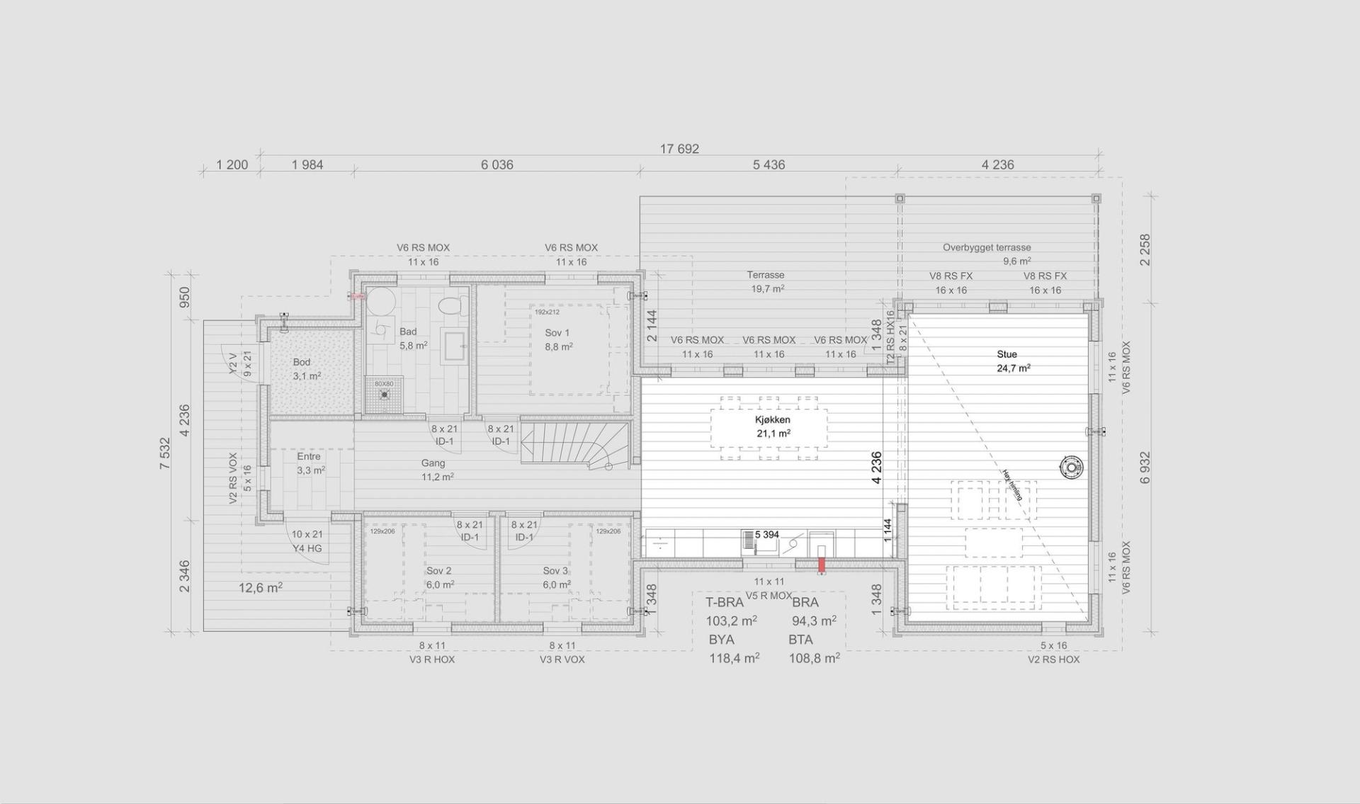
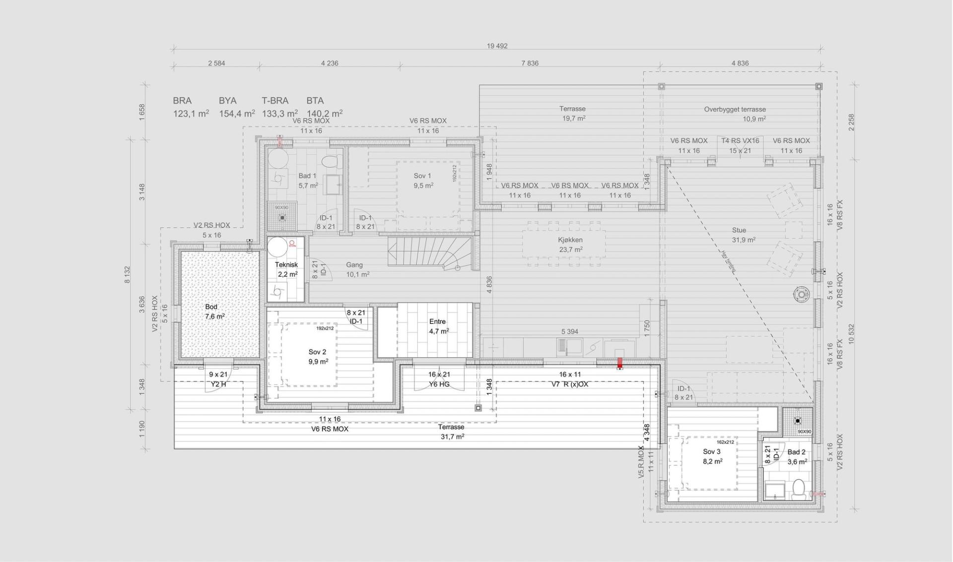
Rognli

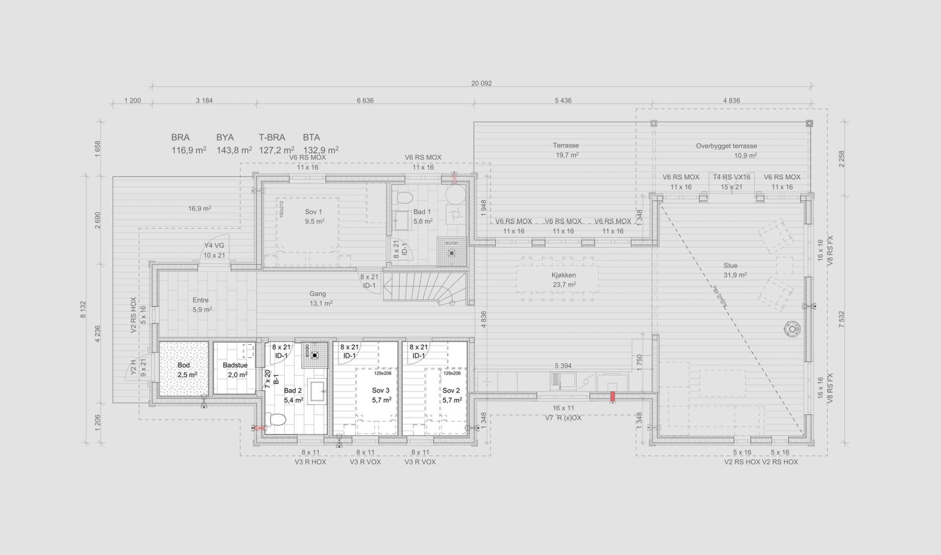
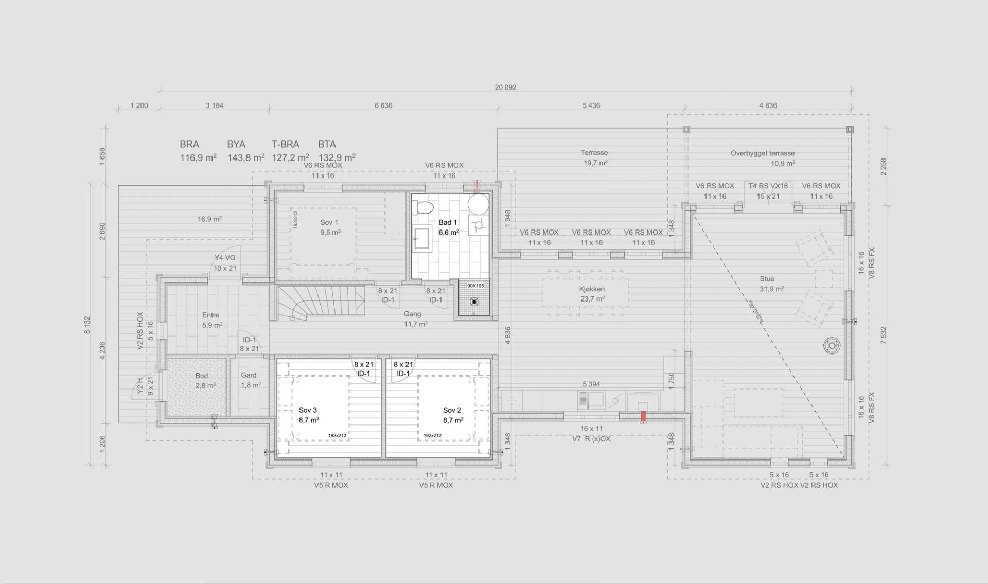
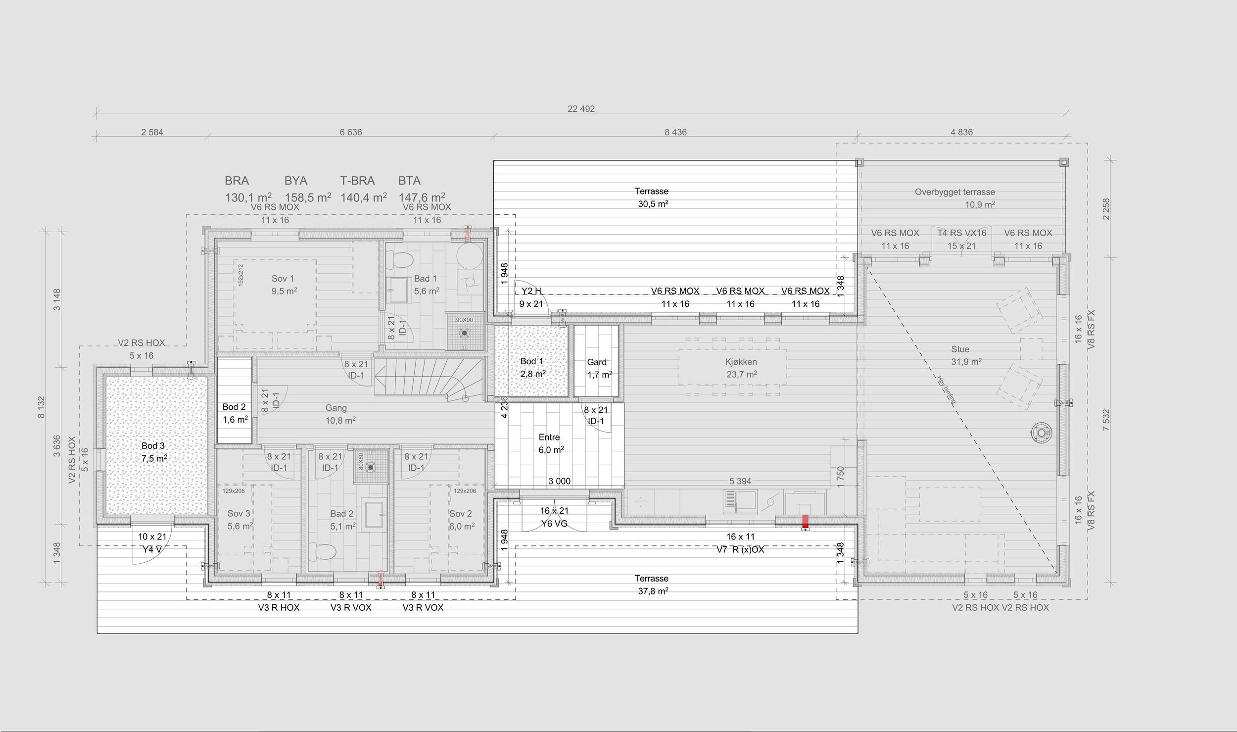
Storeble

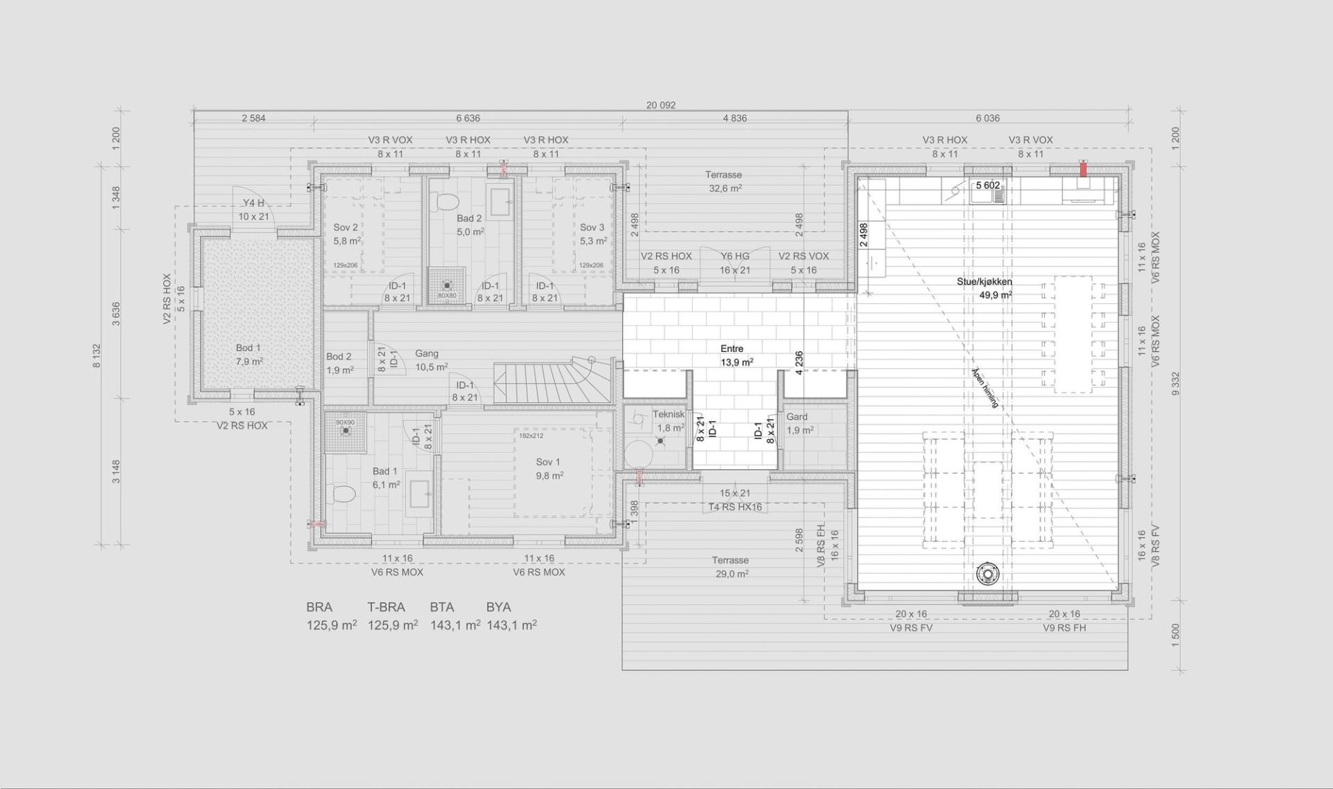
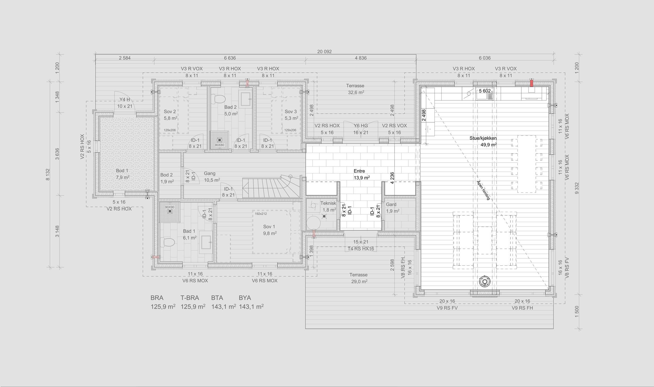
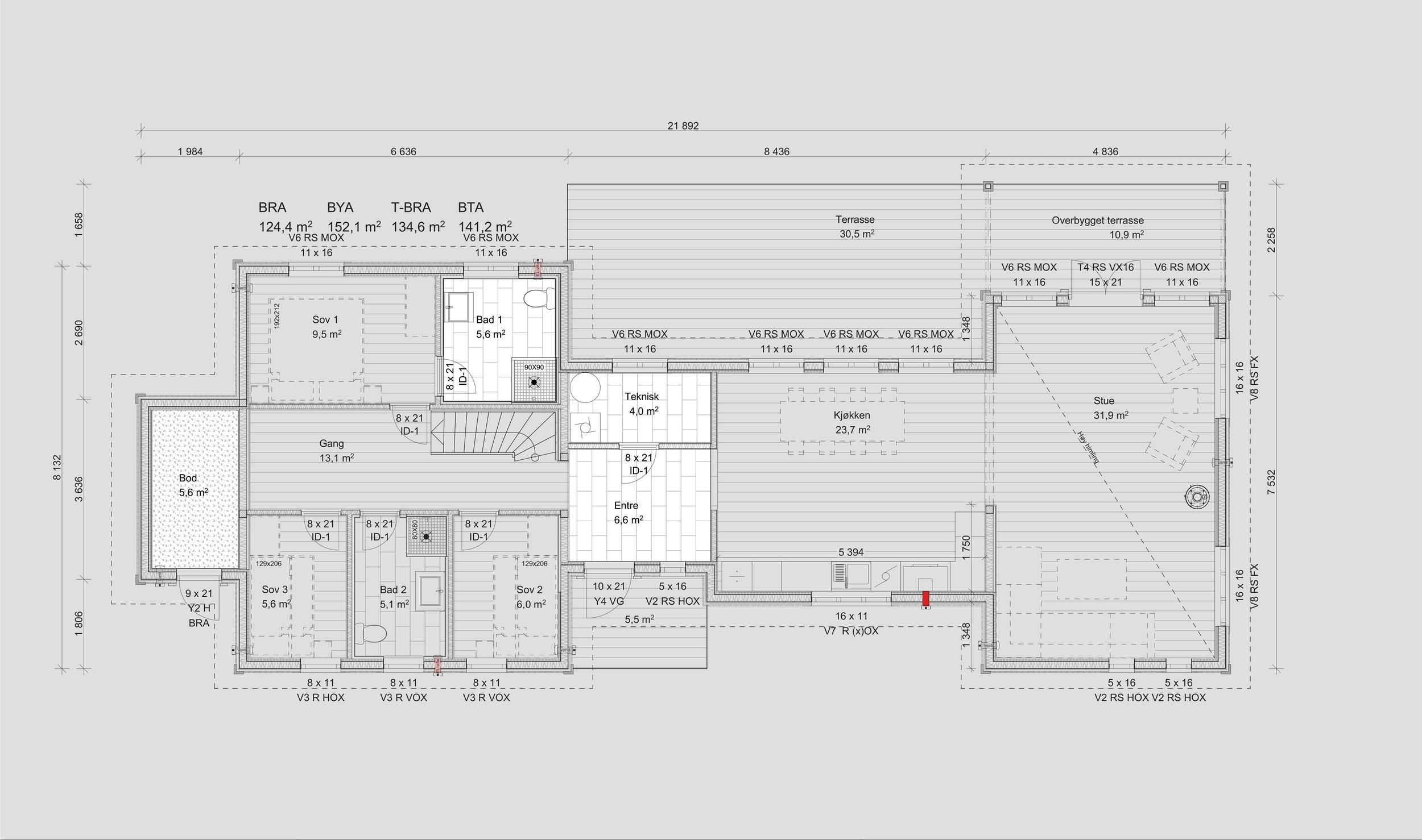
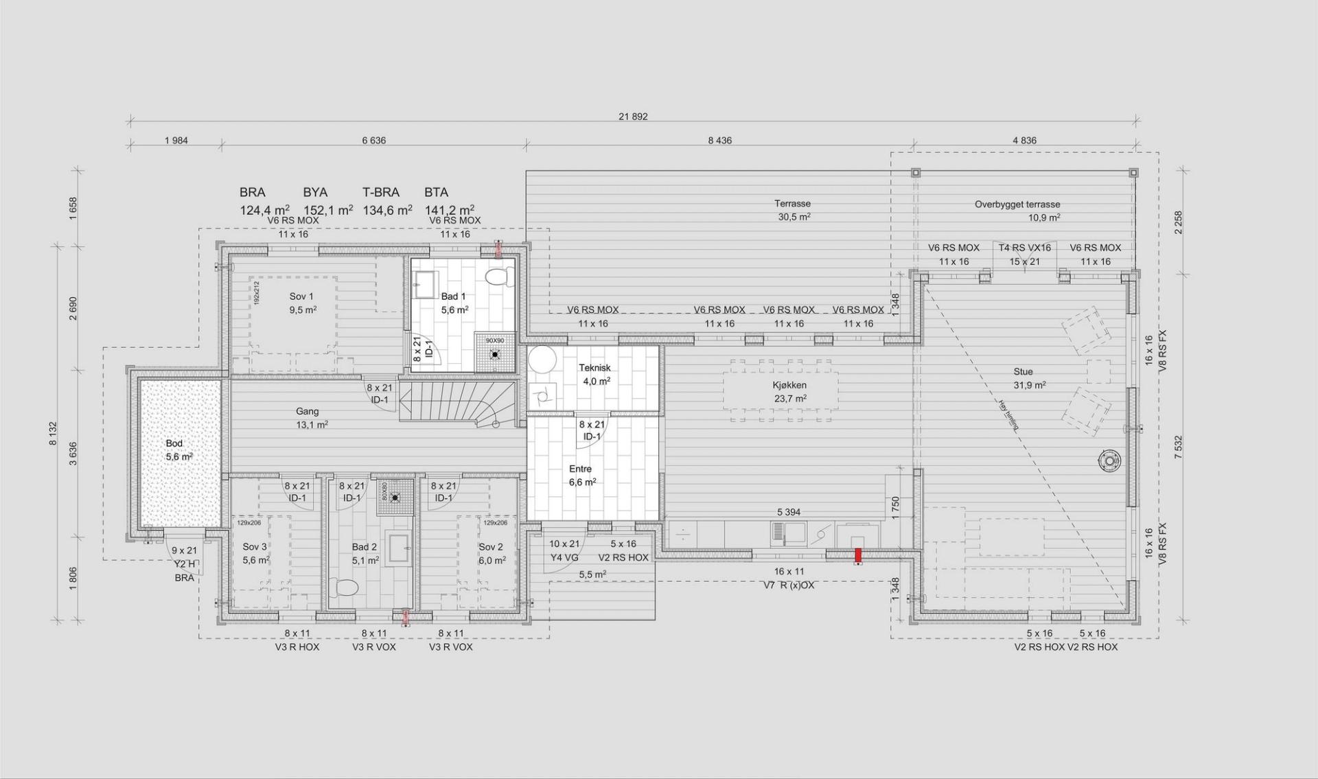
Hovden

Et innblikk i
kvaliteten
VELKOMMEN INN
INTERIØR
DETALJER OG STEMNING
UTELIV











Storeble
Stue og kjøkken
Gang
Soverom
Hems
Detaljer



























































Rognli panorama
Stue og kjøkken
Gang
Soverom
wc







































Storeble panorama
Stue og kjøkken
Soverom
Detaljer

































Kontakt oss



















